
680 000 €
680 000 €
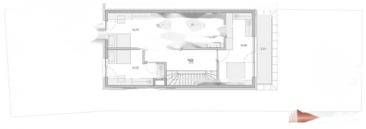
Представляем вам уникальную возможность приобрести дом с террасой в живописном районе поселка Тайцен. Этот новый строящийся объект площадью 291,6 м², завершение которого планируется в начале 2025 года, состоит из подвала, первого и второго этажей.
Впечатляющая современная архитектура с хорошо продуманной планировкой интерьера создает уникальное пространство для комфортной жизни. В доме три спальни и две удобные ванные комнаты. Просторный и светлый дневной зал совмещен с кухней и столовой, обеспечивая идеальные условия для семейных встреч и приема гостей.
Идеальное расположение вблизи Шмарной горы гарантирует спокойствие и тишину, а также возможность воспользоваться многочисленными рекреационными зонами. Удобный и быстрый доступ к городской инфраструктуре и автостраде позволяет без труда добраться в любой уголок города.
Дома будут сданы покупателям с полностью готовым внешним оформлением, а внутренние помещения до уровня основных конструктивных элементов. Это позволит владельцам адаптировать пространство под свои нужды и вкусы. Также есть возможность заказа полной отделки под ключ по вашим требованиям в течение трех месяцев.
Окруженные зеленью и спокойствием, эти дома обеспечат вам высокий уровень приватности и комфорта, а качественные материалы и энергосберегающие окна помогут снизить затраты на содержание.
Цена: 680 000,00 EUR