
659 000 €
659 000 €
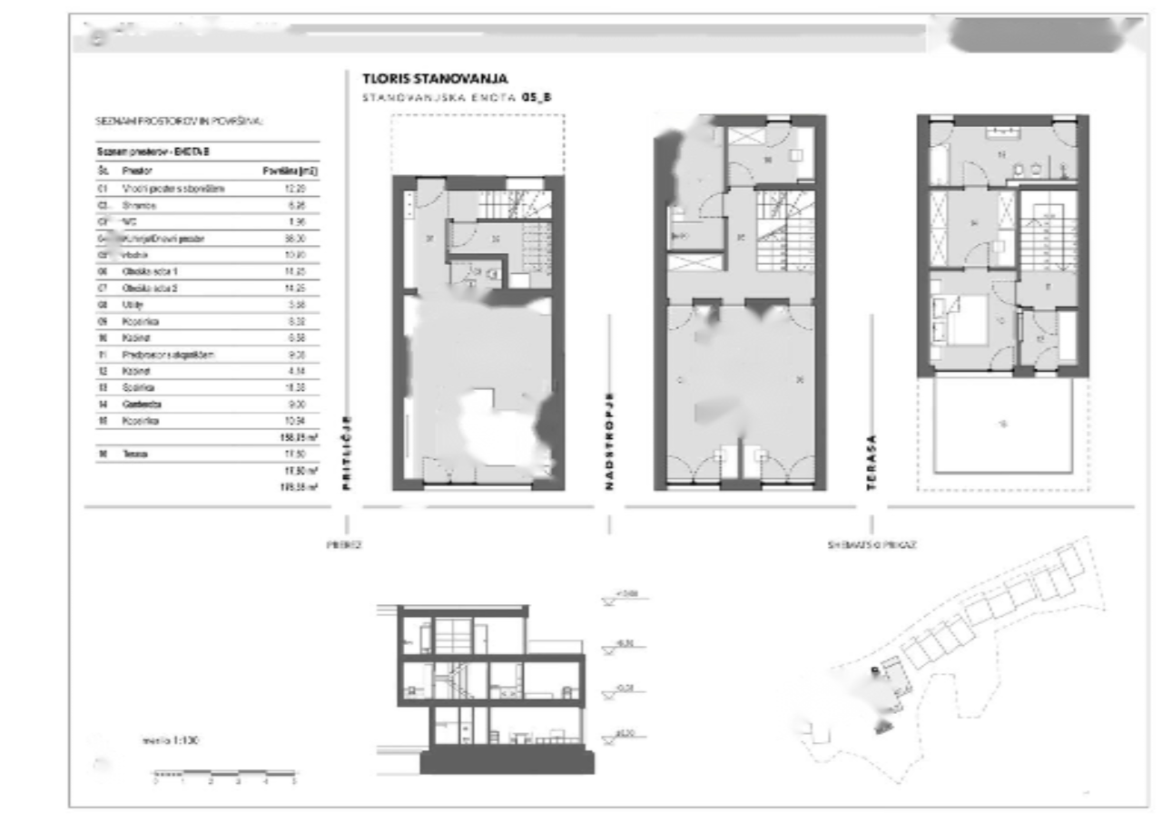
Предлагается к продаже новый дом с террасой, расположенный в районе Вич, это современная новостройка площадью 183,49 м². Объект, построенный в 2022 году, готов к заселению и соответствует высоким стандартам качества.
Дом предлагает комфортное проживание на трех уровнях: первый этаж, два верхних этажа и терраса, обеспечивающая прекрасное место для отдыха на свежем воздухе. Разумное планирование пространства включает светлый и просторный дневной зал с кухней на первом этаже, две детские комнаты и кабинет на втором, а на верхнем этаже - основную спальню с гардеробной и дополнительным кабинетом.
Участок площадью 186,65 м² окружен зелеными насаждениями, и здесь же находится ухоженный внутренний дворик. Южная ориентация обеспечивает оптимальное освещение помещений в течение дня.
Район Вич отличается прекрасным сочетанием городской инфраструктуры и близости к природе. Магазины, школы и транспортные узлы доступны в шаговой доступности, что обеспечивает удобство и комфорт вашего проживания.
Дом выполнен из современных высококачественных материалов, включая энергоэффективные окна и надежные входные двери с передовыми функциями безопасности. Стоимость этого замечательного объекта составляет 659.000,00 EUR.