
684 375 €
684 375 €
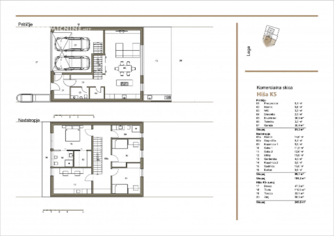
Предлагается новый дом с террасой в престижном районе Брдо, расположенном по адресу Улица Азмана. Начало строительства запланировано на 2025 год. Двухэтажный дом площадью 191,2 м² занимает участок площадью 249,5 м².
Дом представляет собой часть современного архитектурного проекта из семи террасных домов, выполненных в классическом стиле с использованием качественных материалов и энергоэффективных технологий. Он предлагает высокий уровень уединения и комфорта, с биоклиматической перголой и пространством для внешней кухни на террасе.
Предусмотрены две внутренние парковочные места в гараже и дополнительные места для посетителей. Спокойная улица вдалеке от городской суеты, но с доступом к необходимой инфраструктуре: всего в 4 км от центра, рядом с рекреационным центром Мостец, технологическим парком, школами, детским садом, транспортом, спортивным центром, аптекой и торговыми точками.
Технические характеристики:
Цена: 684 375,00 EUR