
599 900 €
599 900 €
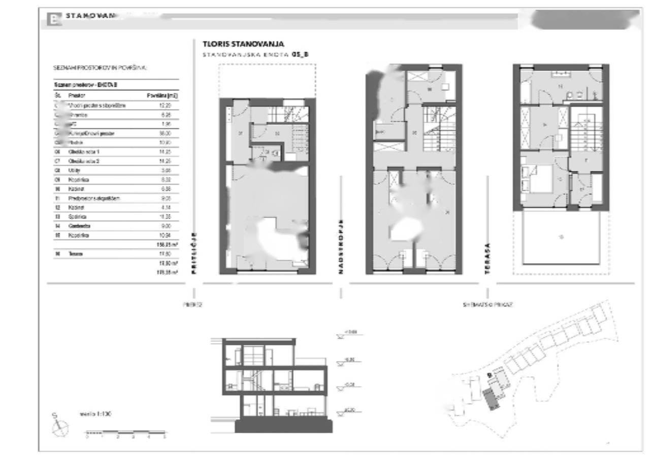
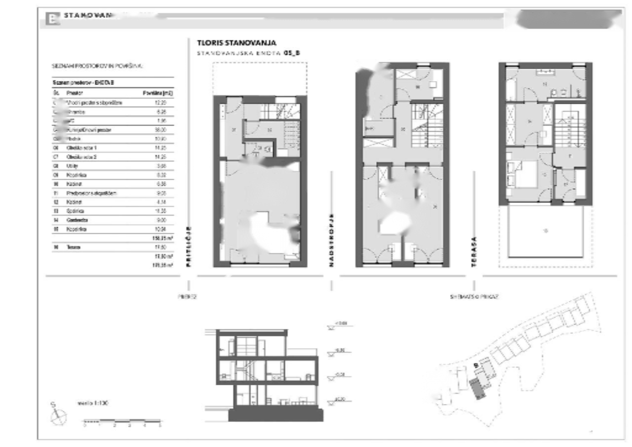
На продажу предлагается новый дом с террасой в районе Вич, Любляна, площадью 183,49 м² на участке 152,02 м². Дом расположен на тихой улице, что позволяет насладиться уютом и спокойствием, оставаясь в близости от городской инфраструктуры. Южное расположение обеспечивает отличное естественное освещение, а соседство с природой — комфортный отдых на свежем воздухе.
Дом, построенный в 2022 году, является частью нового охраняемого поселения из 17 домов разного типа. Здесь предусмотрены общие зеленые зоны и детская площадка, а также удобные парковочные места прямо перед домом. Отличное транспортное сообщение позволяет быстро добраться до центра города и объездной дороги.
Дом выполнен из высококачественных материалов с функциональными планировками, подходящими для всех поколений. Внутри — комфортная гостиная с кухней, две детские комнаты, две ванные комнаты, кабинет и гардеробная. Также оборудованы отдельная комната для хранения и дополнительный туалет для гостей.
Основные характеристики:
Преимущества этого объекта:
Цена дома с учётом налога: 599 900,00 €