
1 900 000 €
1 900 000 €
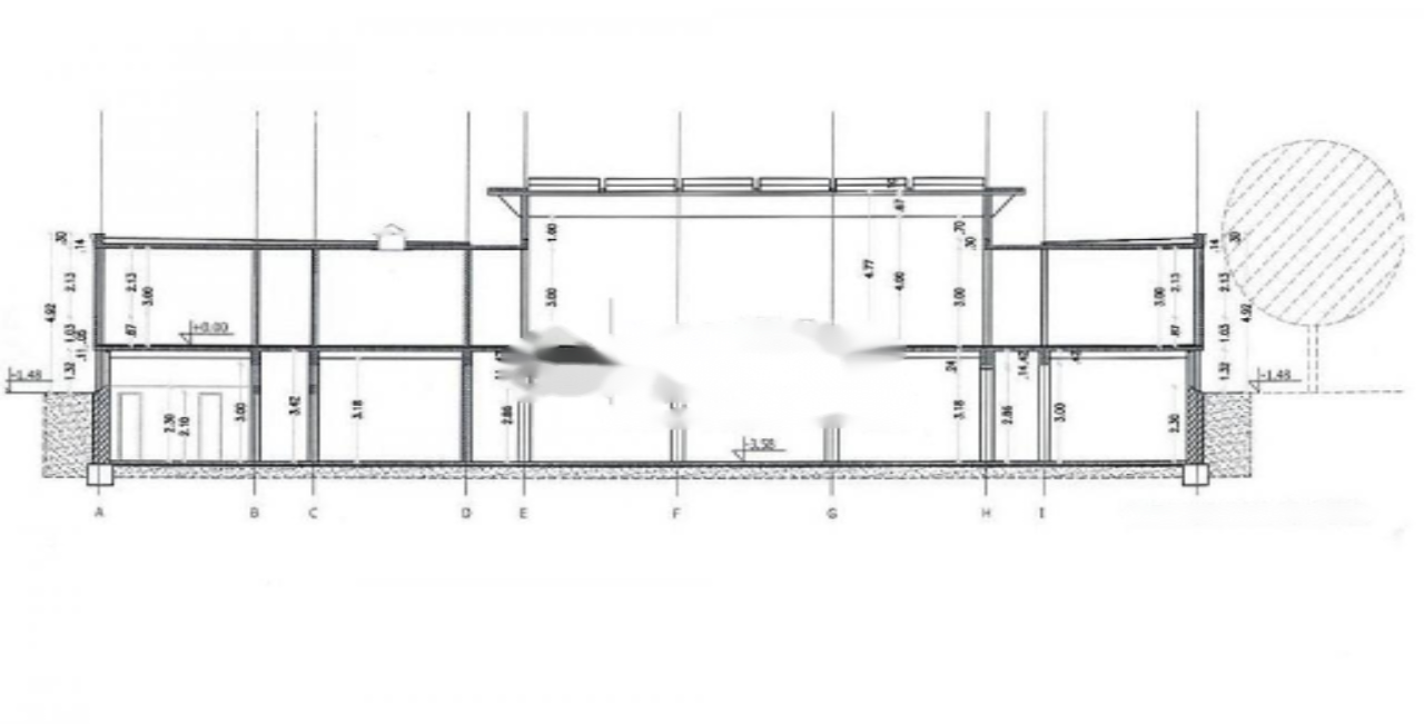
Предлагается к продаже многофункциональный двухэтажный объект с назначением под услуги и производство. Общая площадь объекта составляет 1 623,5 м². Постройка была завершена в 1964 году и включает в себя два уровня: первый этаж площадью 816 м² и подвал площадью 817 м².
Архитектурные особенности объекта позволяют объединение двух частей благодаря конструкции на колоннах. На первом этаже расположены отдельная офисная зона (приблизительно 120 м²) и значительное торгово-выставочное помещение с большими окнами (приблизительно 700 м²). Высота потолков во втором уровне достигает 4,80 м между перекрытиями и 4 м до перекрытий, что позволяет создание галереи. Доступ к объекту обеспечен для грузовых транспортных средств с возможностью установки грузового лифта или лестницы для связи этажей.
В подвале с высотой потолков между перекрытиями 3,45 м и до перекрытий 3 м находятся три крупных производственно-складских помещения и несколько меньших хранилищ, которые могут быть объединены. Объект имеет потенциал подключения к городскому газоснабжению и водопроводу.
Юридическое состояние объекта находится в процессе установления индивидуальной собственности на этажи. Объект готов к эксплуатации сразу после покупки.
Объект расположен всего в 500 метрах от кольцевой дороги и имеет примерно 30 парковочных мест. Расходы на коммунальные услуги составляют приблизительно 1 €/м², а годовой налог на недвижимость составляет около 9 000 €.
Инвестиционная привлекательность объекта оценивается на 7 из 10. Удобное расположение относительно транспортной инфраструктуры и возможность модернизации делают это предложение интересным для деловых целей.
Финальная стоимость составляет 1 900 000,00 EUR.