
1 080 000 €
1 080 000 €
Изысканный дом в новом жилом комплексе «Виллы Бокальце», расположенный рядом с комплексом замка Бокальце. Новое строительство, общий участок площадью 619 м². Панорамные виды на Полхоградские холмы и Люблянское барье, с возможностью обозревания окрестностей вплоть до горы Крим.
Закрытое и гармонично спланированное сообщество, состоящее из 37 единиц, предлагает уютные прогулочные тропы и зелёные зоны. Здесь также есть детская площадка с разнообразными игровыми элементами и мини-гольф, предназначенные только для жителей комплекса.
В районе доступна вся необходимая инфраструктура: школы, детские сады, аптеки, магазины. Удобное транспортное сообщение благодаря городской линии и простому доступу к скоростным магистралям.
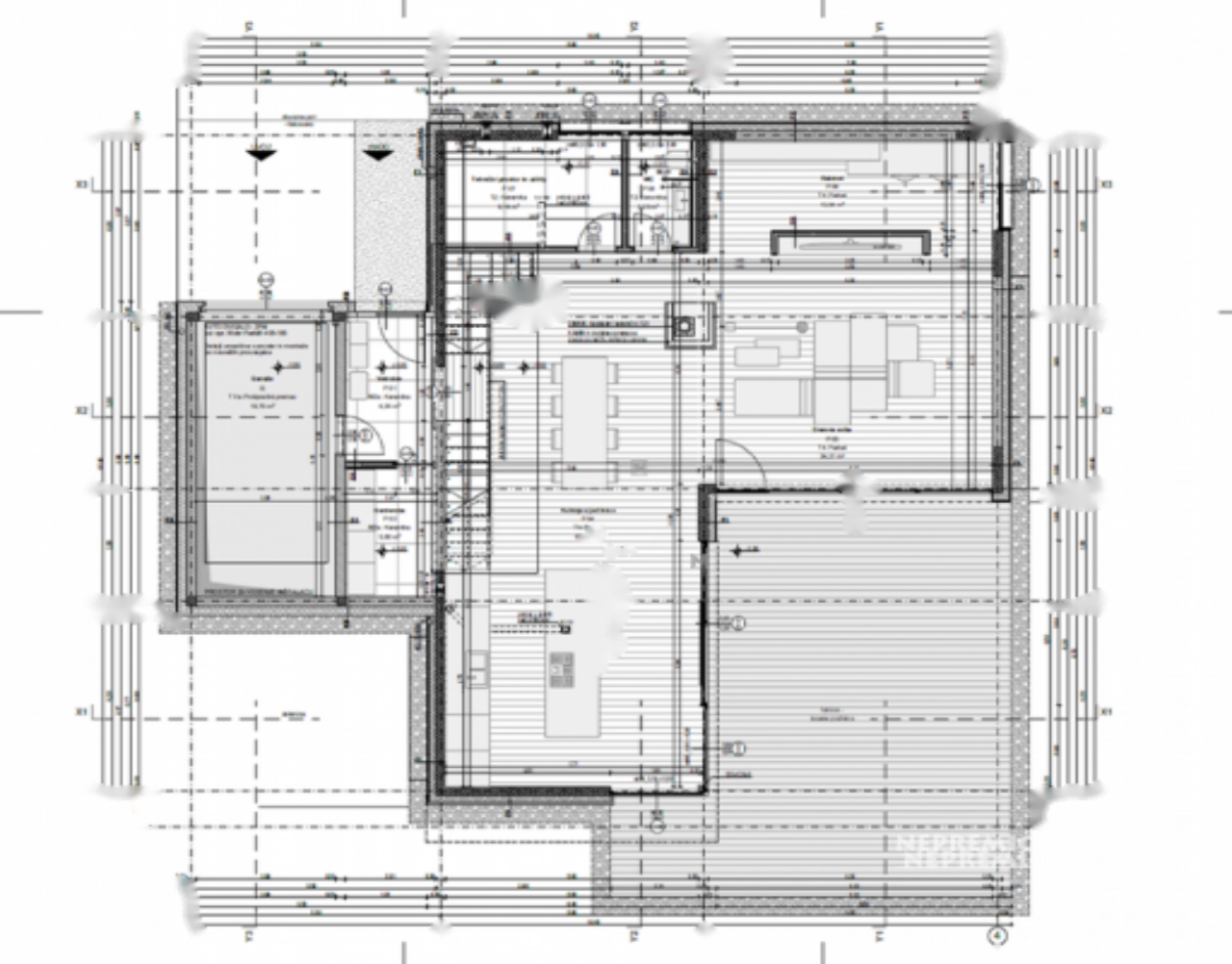
Дом имеет светлые и просторные жилые помещения, включает в себя террасу, двор и гараж. Брутто площадь составляет 302,3 м², а нетто площадь — 239,77 м². Участок - 619 м². Конструкция завершена до третьей стадии строительства, возможна постройка бассейна.
Планировка:
Высококачественное строительство и продуманная ориентация помещений позволяют наполнить дом естественным светом. Идеальный выбор для тех, кто ищет спокойствие городской окраины с удобным доступом к столичным благам.
Цена: 1 080 000 евро