
2 000 000 €
2 000 000 €
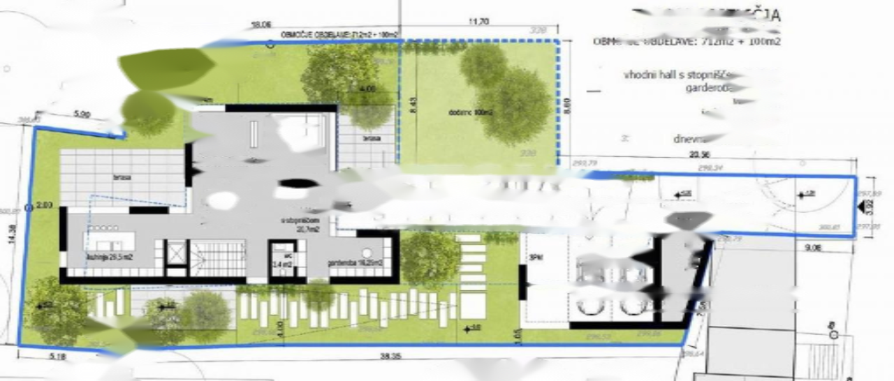
Представляем Вашему вниманию впечатляющий дом в Рожна Долина, окружённый парковой зоной и предлагающий все преимущества современного комфорта. Эта отдельно стоящая новостройка будет завершена в 2025 году и расположена на просторном участке площадью 824 м².
Дом характеризуется исключительной архитектурой с высокими потолками и большими панорамными окнами, благодаря которым пространство заполнено естественным светом и открываются живописные виды на Рожник и Крим. Эта резиденция идеально подходит как для семьи, так и для представителей дипломатии или в качестве эксклюзивного уединения для индивидуальных нужд.
Всего в доме пять спален и четыре ванных комнаты, а также возможность обустройства помещений по вашему вкусу. Строительство находится на III продвинутой стадии, что позволяет вам сосредоточиться на дизайне интерьера, без необходимости оформления строительных документов.
Дом расположен в городской черте, но всего в минуте ходьбы от парка, что делает его идеальным местом для тех, кто ценит сочетание городского удобства и спокойствия природы.
Все строительные документы, включая проект завершения инженерных и электрических установок, уже подготовлены. Это даёт вам полную свободу в реализации ваших идей и пожеланий.
Цена: 2 000 000 Евро