
54 900 €
54 900 €
Предлагается уникальная возможность строительства современного одноэтажного дома в живописной словенской деревне Голац. Площадь дома составляет 157 м², а участок — 9.420 м², из которых 216 м² предназначены для строительства. Все документы, включая окончательное разрешение на строительство и оплаченные коммунальные взносы, уже оформлены, что позволяет незамедлительно приступить к строительству.
Дом будет располагаться на участке, площадью 216 м², с предусмотренной слугой доступа к соседнему участку и двумя парковочными местами. Остальная часть земельного участка включает лес, сельскохозяйственные угодья и пастбища, что создает уникальные возможности для самообеспечения.
Этажи дома:
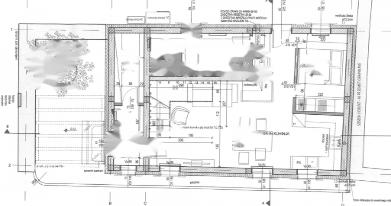
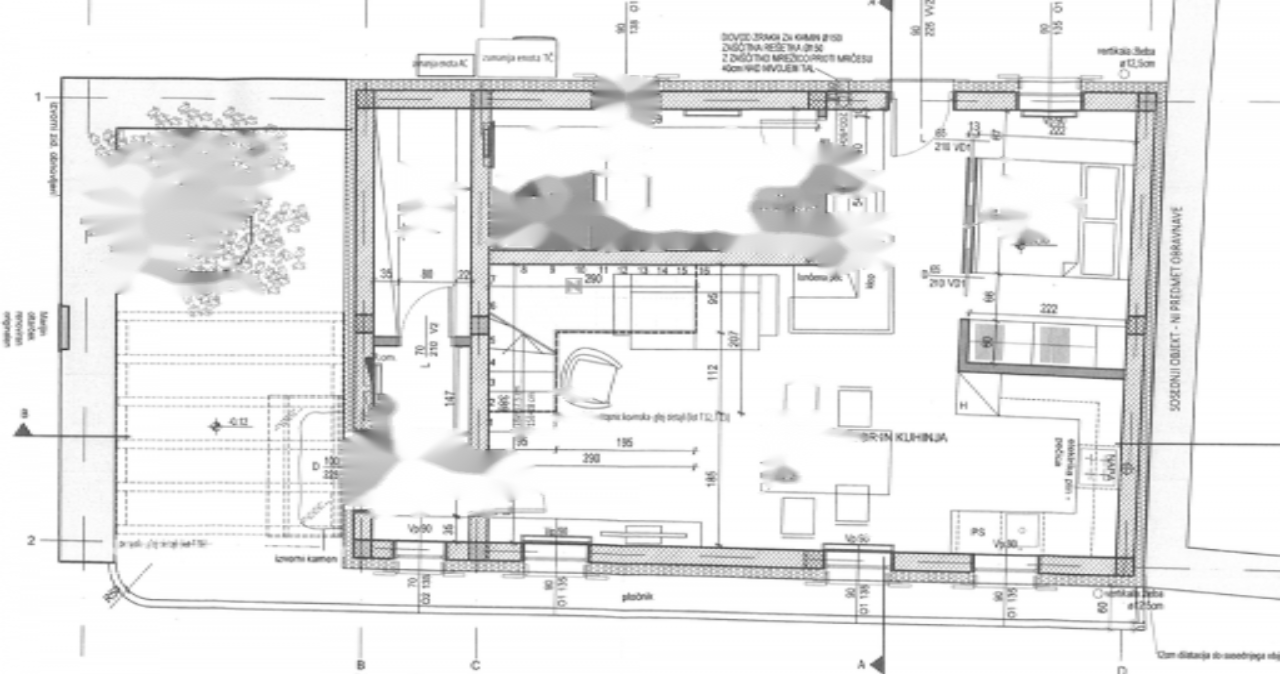
Первый этаж (61,1 м²): состоит из прихожей, кладовой, просторной гостиной с кухней, спальни и ванной комнаты с хозяйственной зоной.
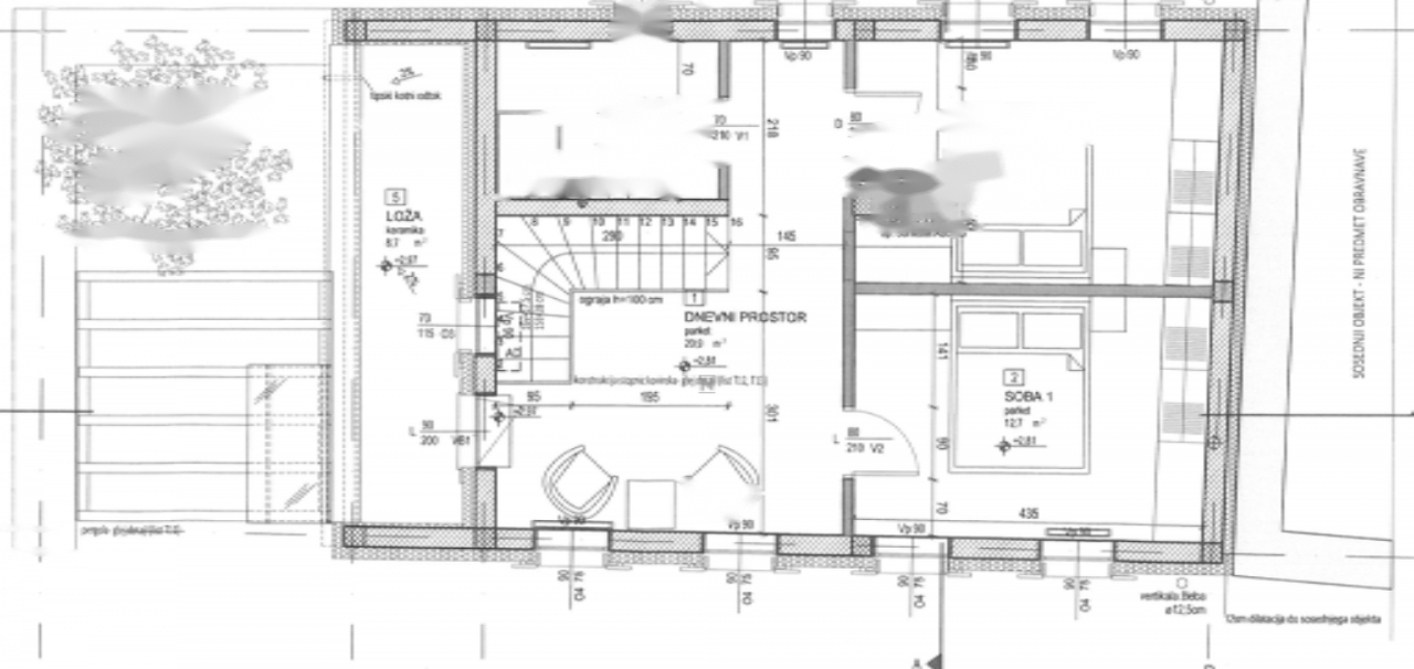
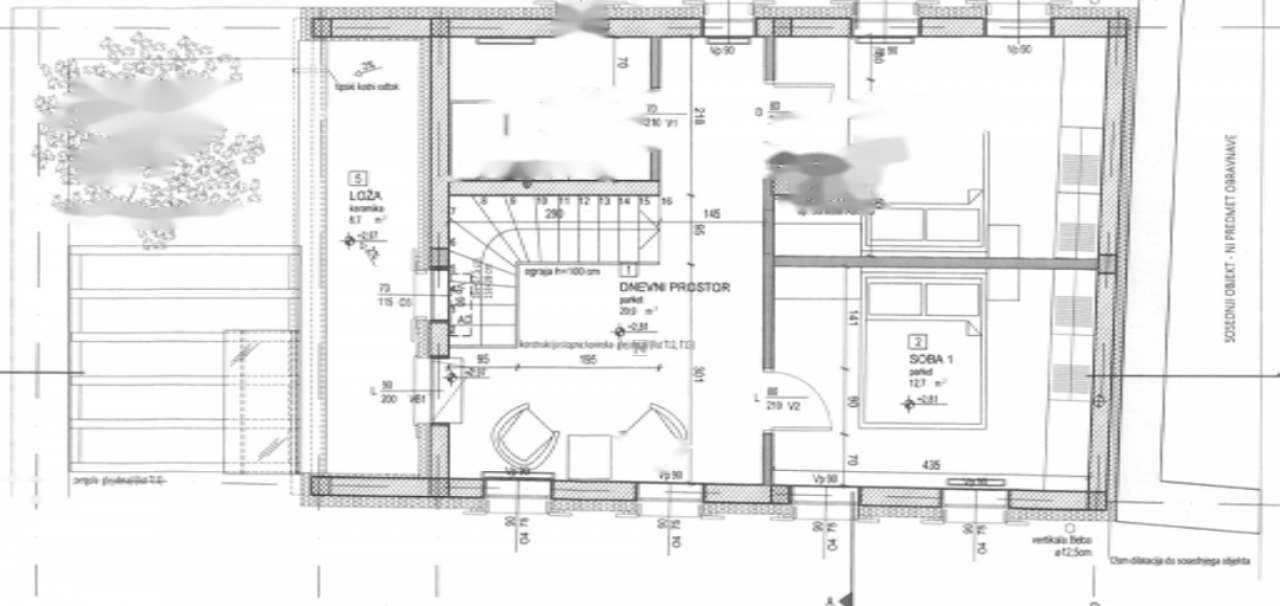
Мансарда (60,9 м²): включает дневную зону, две спальни и ванную комнату с выходом на лоджию.
Расположенный в идиллической и тихой деревне Голац, дом окружён природой и идеально подходит для любителей туризма, велосипедных прогулок и отдыха. Близость к источнику воды и лесным тропам добавляет экологическую ценность и возможности для активного отдыха. Недалеко также находится известная «Добрая дом здоровья», привлекающая посетителей из различных регионов.
Характеристики: