
1 800 000 €
1 800 000 €
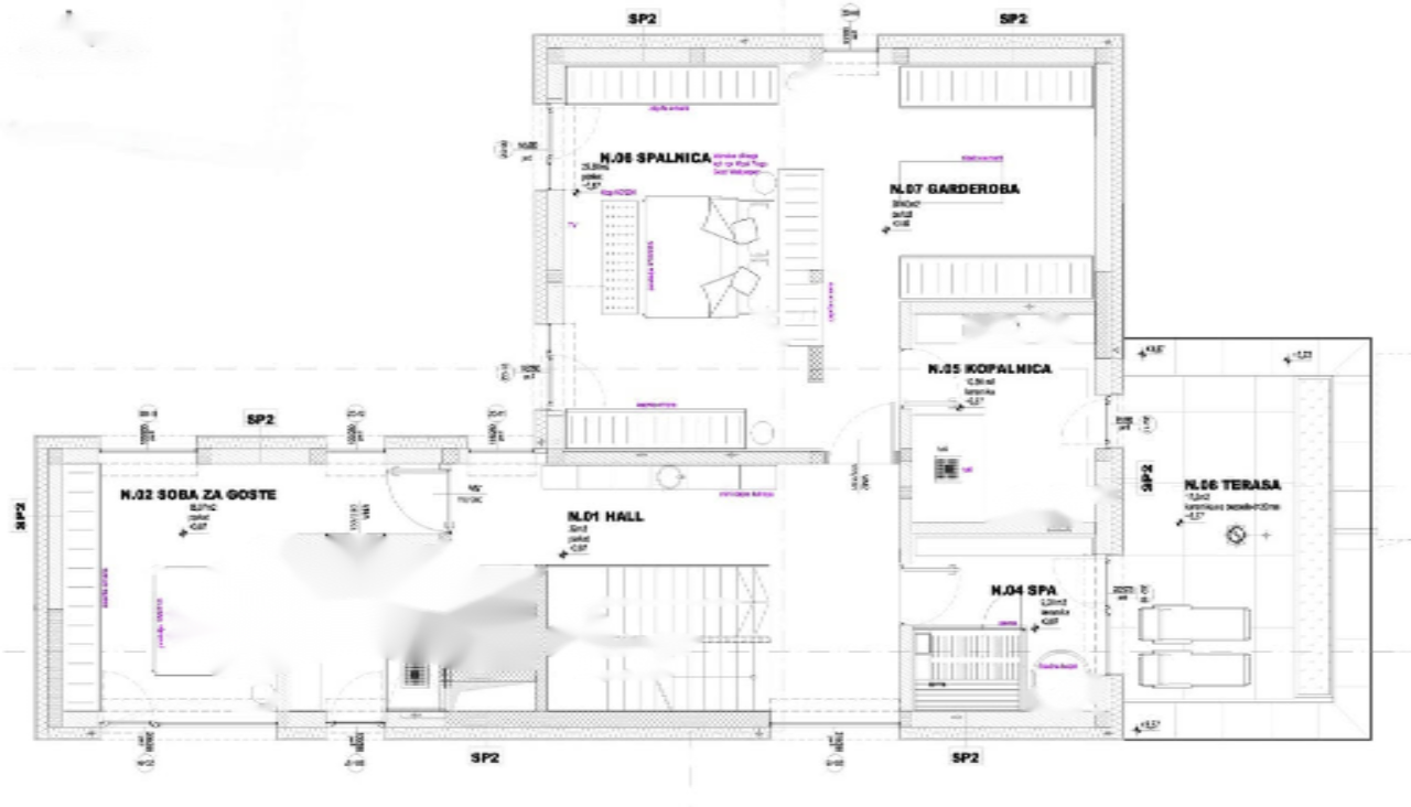
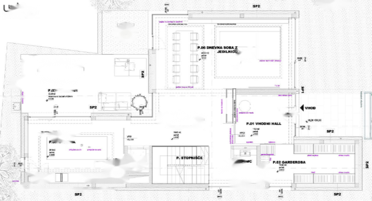
Предлагается на продажу роскошная вила в одном из самых живописных районов Любляны — Рожна-Далина. Данный одноэтажный дом с подвалом, первым этажом, вторым этажом и мансардой отличается современным дизайном и просторностью. Панорамные окна обеспечивают обильное естественное освещение, открывая виды на зелёные окрестности, которые словно приглашают на прогулку в лесной массив рядом с Рожником.
Особое удовольствие доставляет пребывание на террасе, где можно наслаждаться пением птиц и наблюдать грациозных косуль, гуляющих по лугу за домом. Отправляясь на велосипеде, вы окажетесь в центре столицы всего за 5 минут, а на автомобиле — за 5 минут доберётесь до объездной дороги, что обеспечивает превосходную транспортную доступность.
Земельный участок площадью 824 м² предлагает достаточно места для сада и просторной парковки. Коммуникации заведены на участок. Продается в стадии расширенной конструктивной готовности, с завершённым фасадом, установкой входных дверей из лиственницы и тройными теплоизоляционными стеклопакетами с алюминиевыми жалюзи. Крыша защищена каменной ватой и покрыта специальными стальными пластинами Prefa.
Цена: 1 800 000 евро