
1 195 000 €
1 195 000 €
Предлагается к продаже современный двухэтажный дом в районе Рожна Долина, Любляна. Эта новостройка, завершение которой планируется к сентябрю 2025 года, характеризуется высоким качеством материалов и технологической совершенностью. Разумный расход энергии и функциональная планировка обеспечивают комфортное проживание в любое время года.
Отличное расположение дома способствует гармоничному проживанию с природой: поблизости находятся парк Тиволи и Рожник. Скоростной доступ к центру города и наличие необходимой инфраструктуры делают эту площадь особенно удобной для жизни.
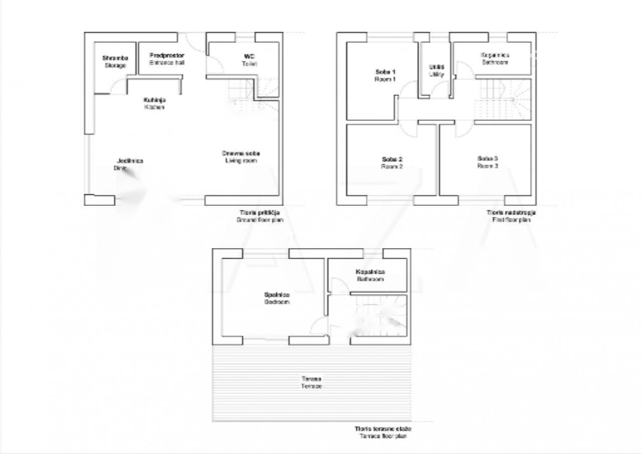
Дом спроектирован в двух отдельных секциях, каждая из которых имеет собственный вход. Жилая площадь составляет 146 м² с дополнительной террасой на крыше диаметром 30,40 м², откуда открывается прекрасный вид на окрестности. Первый этаж включает прихожую, санузел, техническое помещение, открытую гостиную с кухней и столовой, а также выход в зелёный дворик. На втором этаже расположены три спальни, ванная комната и хозяйственное помещение. Верхний этаж занимает главная спальня с ванной и выходом на роскошную террасу.
Световые решения в доме обеспечиваются ориентацией здания на северо-восток/юго-запад, что гарантирует обилие естественного освещения. Среди инженерных решений — теплонасос воздух/вода для напольного отопления, рекуперация, окна с тройным остеклением и наружные жалюзи. Терасса будет оборудована металлическими оградами. Полы будут выложены высококачественной керамикой и дубовым паркетом, а двор будет покрыт газоном с террасой в 15 м².
Для каждой секции предусмотрены два парковочных места на общем асфальтированном участке с навесом прямо возле дома. Дом снабжён всеми необходимыми подключениями: электричеством, водой, коммунальными услугами и оптоволоконным интернетом.
Дом расположен в непосредственной близости от детского сада, школы, общественного транспорта и крупных рекреационных зон. Выгодное положение у центра города и природных территорий делает его особенно привлекательным для семей.
Цена: 1 195 000 евро