
1 167 160 €
1 167 160 €
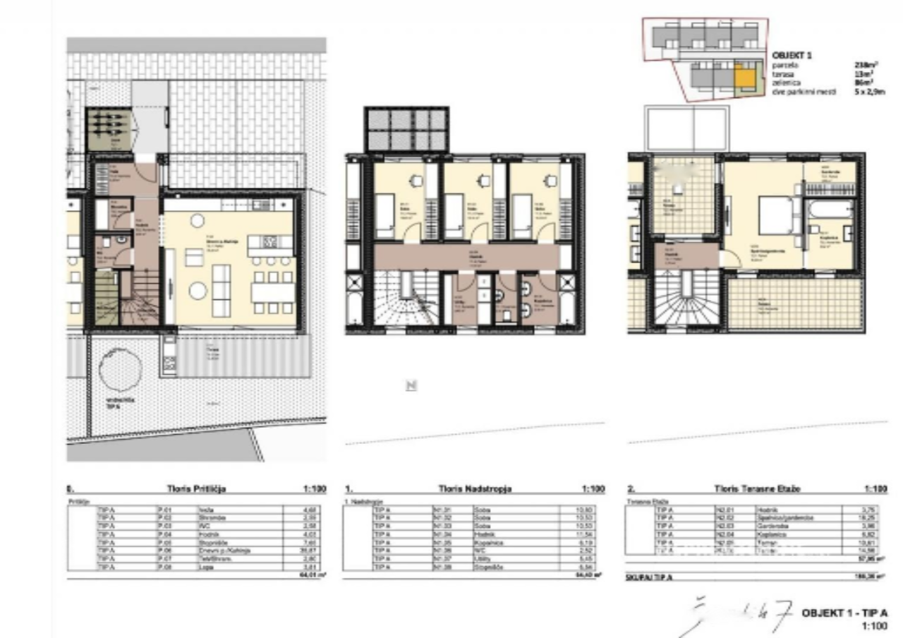
В проекте новостроек «Шишенские 7» в Нижней Шишке представляется современный дом с террасой общей площадью 186,4 м², расположенный на земельном участке площадью 234 м². Этот проект предполагает строительство 7 домов, каждый из которых предназначен для комфортного проживания с акцентом на качество. Дом обладает общей площадью в три этажа и представляет собой удачный баланс между жизнью в городе и спокойствием.
Этот трёхэтажный дом, построенный по высоким стандартам, предлагает 4 спальни и 2 ванные комнаты с отдельным туалетом, обеспечивая максимум комфорта для большой семьи. Основные достоинства включают просторный дневной открытый план с выходом на ограждённый атриум и две частные террасы, что позволяет насладиться свежим воздухом и тихими вечерами. Утончённая архитектура и качественная отделка в виде армированного бетона и облицовочной кирпичной фасады обеспечивают долговечность и безопасность.
Расположение дома на границе центра Любляны и района Нижняя Шишка предлагает удобный доступ к основным транспортным узлам и общественному транспорту. В непосредственной близости находятся магазины, рестораны, кафе, школы и медицинские учреждения, а также рекреационные зоны, такие как парк Тиволи и спортивный парк Шишка. Весь проект обеспечивает комфортное и спокойное проживание, что особенно ценится в городской среде.
Цена: 1 167 160 евро