
529 000 €
529 000 €
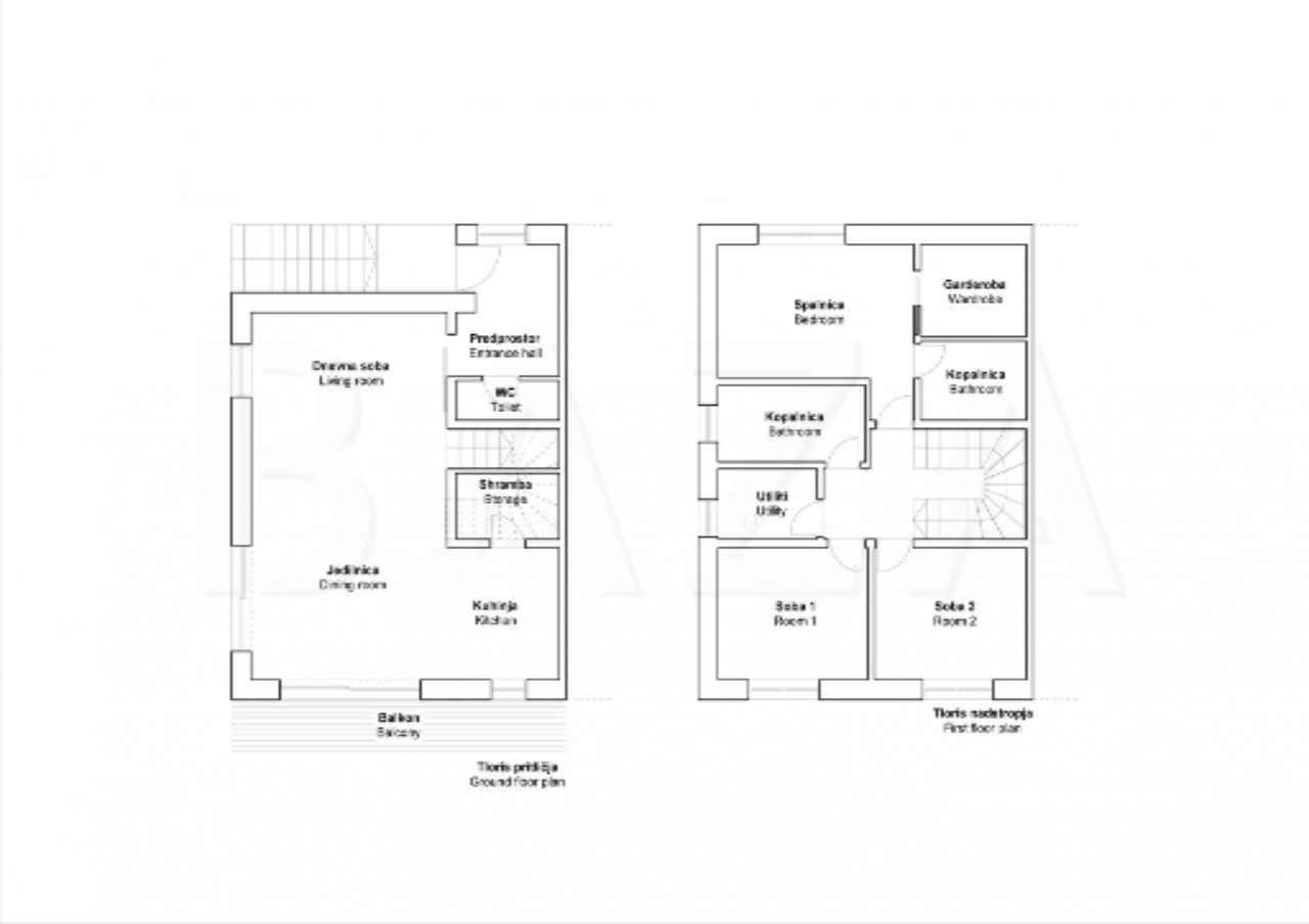
Предлагается к продаже новая двухэтажная недвижимость в престижном районе Чрна-Вас города Любляна. Двухэтажный дом был построен в 2025году и расположен на участке площадью 229 м². Общая площадь дома составляет 136,5 м², из которых 125,5 м² — это жилое пространство, включающее в себя просторные комнаты и практичные зоны для комфортного проживания.
Дом обладает современным дизайном и выполнен с учётом низкоэнергетической технологии. Первом этаже располагаются ветролов, дневной санузел, кладовая, объединённая гостиная с кухней и столовой, а также балкон. Верхний этаж включает в себя хозяйственную кладовую, ванную комнату, две детские комнаты и главную спальню с собственной ванной комнатой и гардеробной. Участок позволяет организовать парковку на два автомобиля и уютную зелёную зону.
Неподалёку от дома находятся остановка общественного транспорта, ресторан, а также разнообразные места для прогулок и занятий спортом. Предусмотрено отопление с помощью теплового насоса и установка системы горячего водоснабжения. Высококачественные оконные и дверные системы с тройным остеклением обеспечат теплоизоляцию и безопасность.
Цена: 529 000евро