
950 000 €
950 000 €
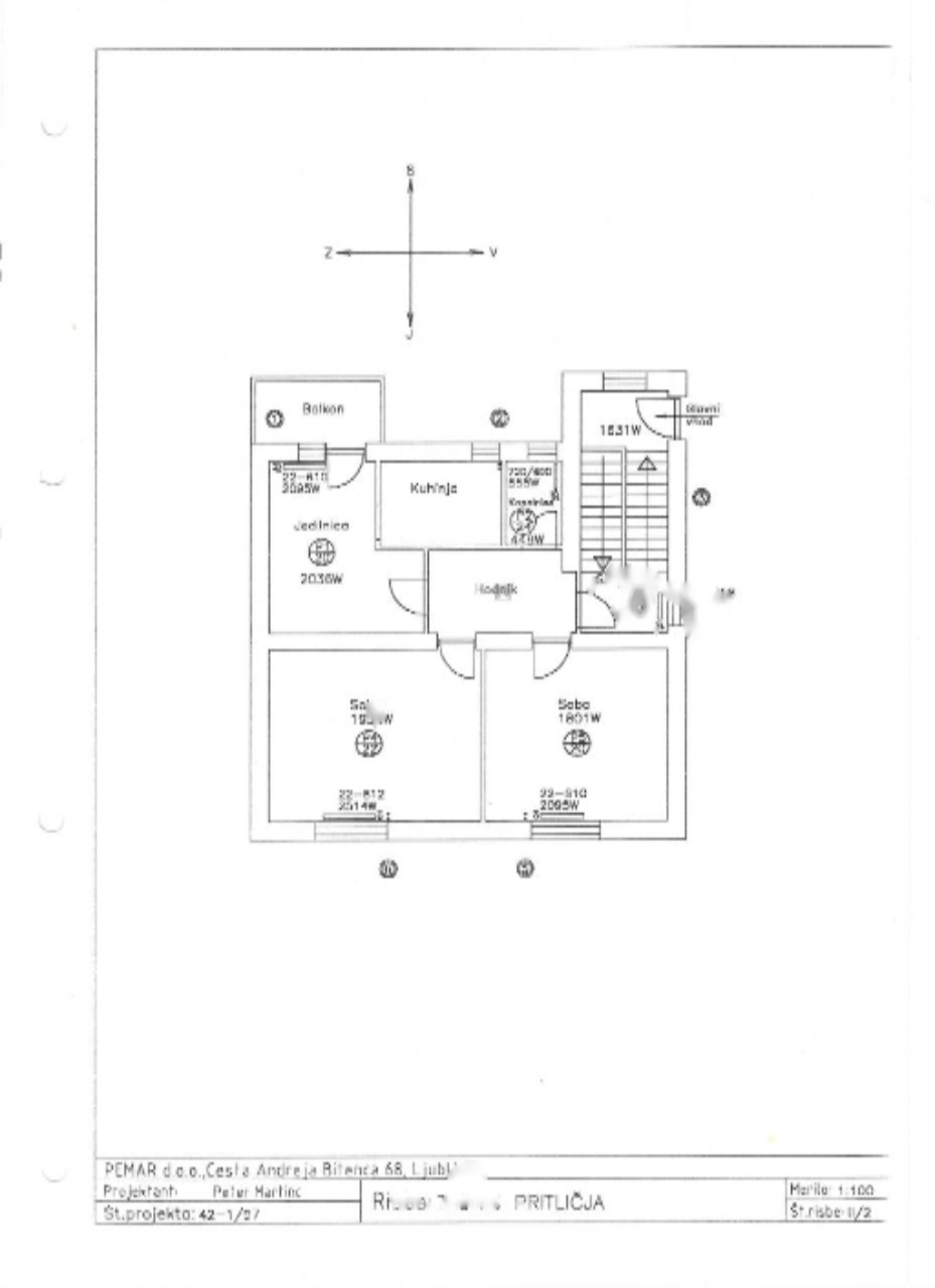
В одном из самых востребованных районов Любляны, в тихом уголке района Бежиград, предлагается на продажу элегантный городской одноэтажный дом общей площадью 153,7 м², построенный в 1937 году и полностью обновлённый в 2012 году. Дом расположен на участке площадью 710 м², состоящем из трёх парцелл, вдалеке от шумных улиц, что обеспечивает уединение и покой.
Преимущества данного объекта трудно переоценить. Прекрасное месторасположение, рядом с односторонней улицей, используется преимущественно только жителями соседних домов. В окрестностях располагаются основные инфраструктурные объекты, такие как начальная школа д-ра Вита Крайгеря, стадион Плечника, детская площадка, небольшой магазин Mercator и остановки общественного транспорта.
Дом включает в себя подвал, первый и второй этажи. В подвале находятся две комнаты, кухня, ванная комната с туалетом, прачечная, котельная и кладовая. На первом этаже расположены ещё одна ванная комната с душевой кабиной и туалетом, гостиная, просторная спальня, столовая с выходом на балкон, а также кухня. Второй этаж включает в себя две спальни, отдельный туалет, ванную комнату с ванной и кухню со столовой.
Рядом с домом располагается прекрасно ухоженный сад, две гаражные площади и дополнительные три парковочных места. Особенностью дома является возможность сохранить арендаторов на одном из этажей при покупке, либо сделать весь дом доступным с 1 марта 2026 года. Установлено центральное отопление от ТЭЦ, а также проведён оптоволоконный интернет.
Цена: 950 000 евро