
1 195 000 €
1 195 000 €
Предлагается на продажу современная квартира в двухквартирном доме, расположенная в районе Рожна долина, Любляна. Новое строительство, завершение в 2025 году. Площадь объекта составляет 176,4 м², из которых 146 м² предназначены для проживания. Двухквартирный дом включает первый этаж и два верхних этажа, с отдельным входом в каждую единицу. Изящное решение для комфортного проживания, сочетающее современную архитектуру и применение лучших материалов.
Основные преимущества объекта включают размещение в зоне с возможностью активного отдыха на природе, в непосредственной близости от городского парка Тиволи и Рожника, а также быстрый доступ в центр города. Вся необходимая инфраструктура — от школ и детских садов до магазинов и общественного транспорта — находится в шаговой доступности, что делает проживание здесь особенно комфортным.
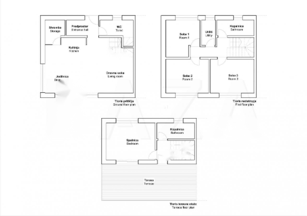
Квартира располагается на трех уровнях. На первом этаже размещены прихожая, санузел, техническое помещение и открытая зона, объединяющая гостиную, кухню и столовую, с выходом в озелененный дворик. На втором этаже размещены три комнаты, ванная и подсобное помещение. На третьем этаже — главная спальня с ванной и просторной террасой площадью 30,4 м², с которой открывается живописный вид. Благодаря расположению здания, в дом проникает много естественного света.
Дом оснащен системой воздушного отопления и рекуперацией воздуха, окна имеют тройное остекление с внешними жалюзи, а входные двери и ограждения выполнены из металла. Внутреннее покрытие — качественная керамика и дубовый паркет, во дворике обустроена травяная зона и вымощенная терраса в 15 м².
Предусмотрено два собственных парковочных места на асфальтированной площадке рядом с домом, а также все необходимые подключенные коммуникации, включая электричество, воду, канализацию и оптику. К такому дому можно въехать сразу после завершения строительства.
Стоимость объекта составляет 1 195 000 евро.