
549 000 €
549 000 €
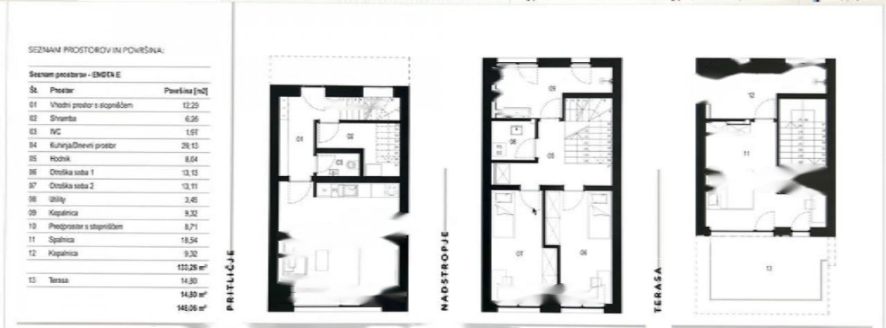
Современный новый дом с террасой, расположенный в престижном районе Вич, Любляна, предлагает комфорт и высокое качество жизни в городской среде. Площадь дома составляет 148,06 м², а земельный участок – 170,97 м². Этот трёхэтажный дом оснащён всем необходимым для удобства и приватности.
Эта новостройка, запланированная к завершению в 2024 году, выполнена с использованием высококачественных экологически чистых материалов и энергосберегающих технологий. Система напольного отопления и контролируемая вентиляция обеспечат комфортный микроклимат и свежесть воздуха в течение всего дня. Подготовка для установки солнечной электростанции делает дом ещё более энергоэффективным.
Район предлагает отличную инфраструктуру: рядом детский сад, школа, аптека, почта, торговый центр и другие объекты. Быстрый доступ к автомобильной развязке Ljubljana Vič (менее 1 км) и центру Любляны (2 км), а также возможность для прогулок и велосипедных поездок по окружающим маршрутам, делают это место особенно привлекательным. Преимущества включают безопасную и ухоженную округу без шума.
Цена: 549 000,00 EUR