
173 680 €
173 680 €
Предлагается к продаже земельный участок площадью 668 м² в районе Нижний Горье, неподалеку от города Блед. Участок предназначен для строительства, и на него выдано строительное разрешение с уже оплаченным коммунальным взносом. Статус земельно-кадастровой книги полностью оформлен, участок свободен от обременений.
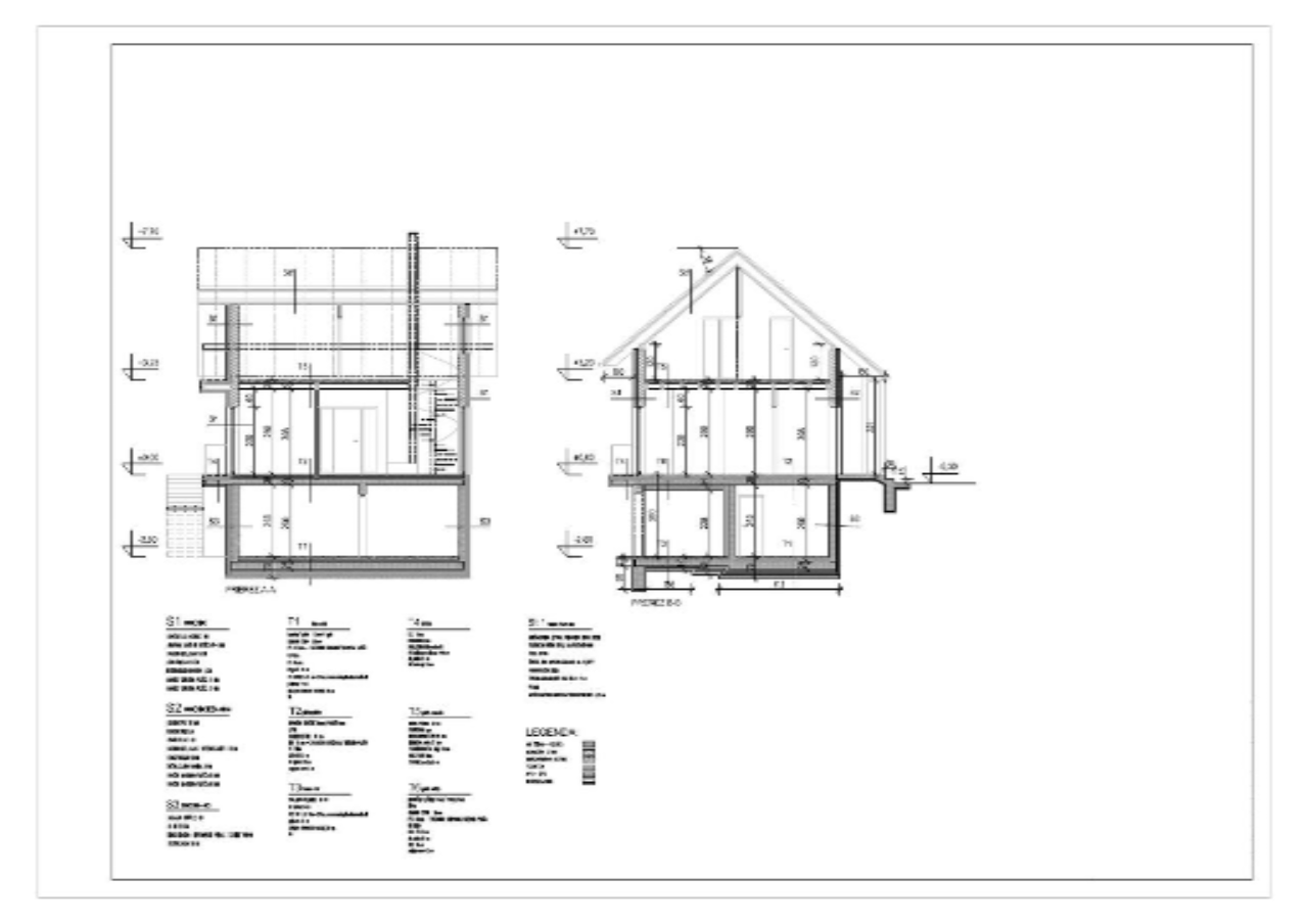
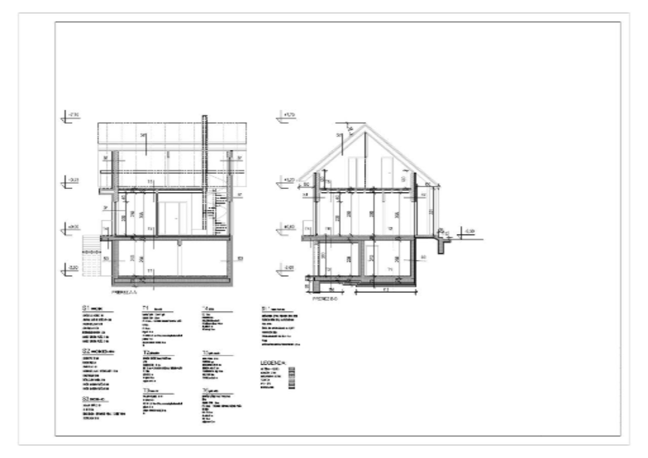
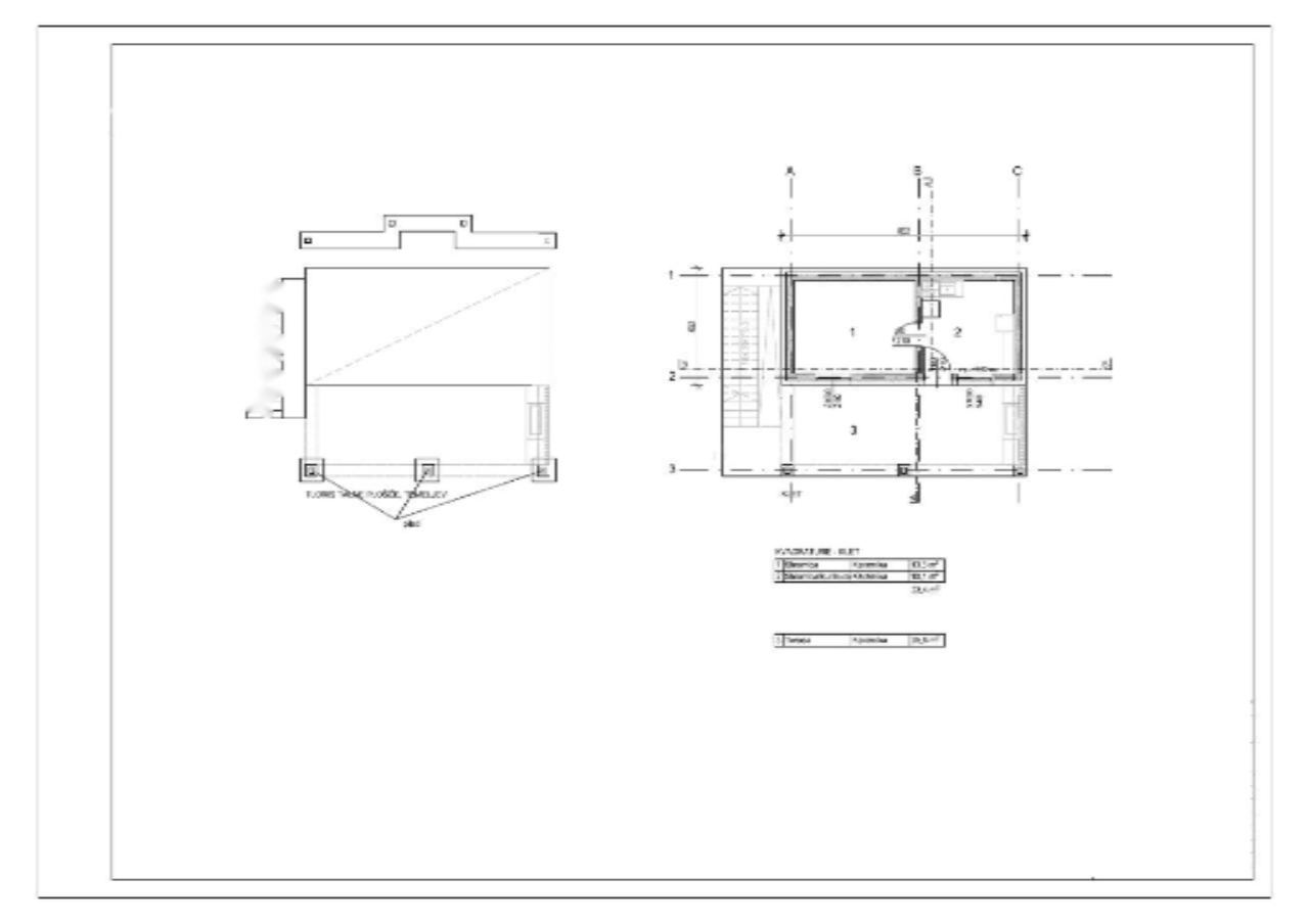
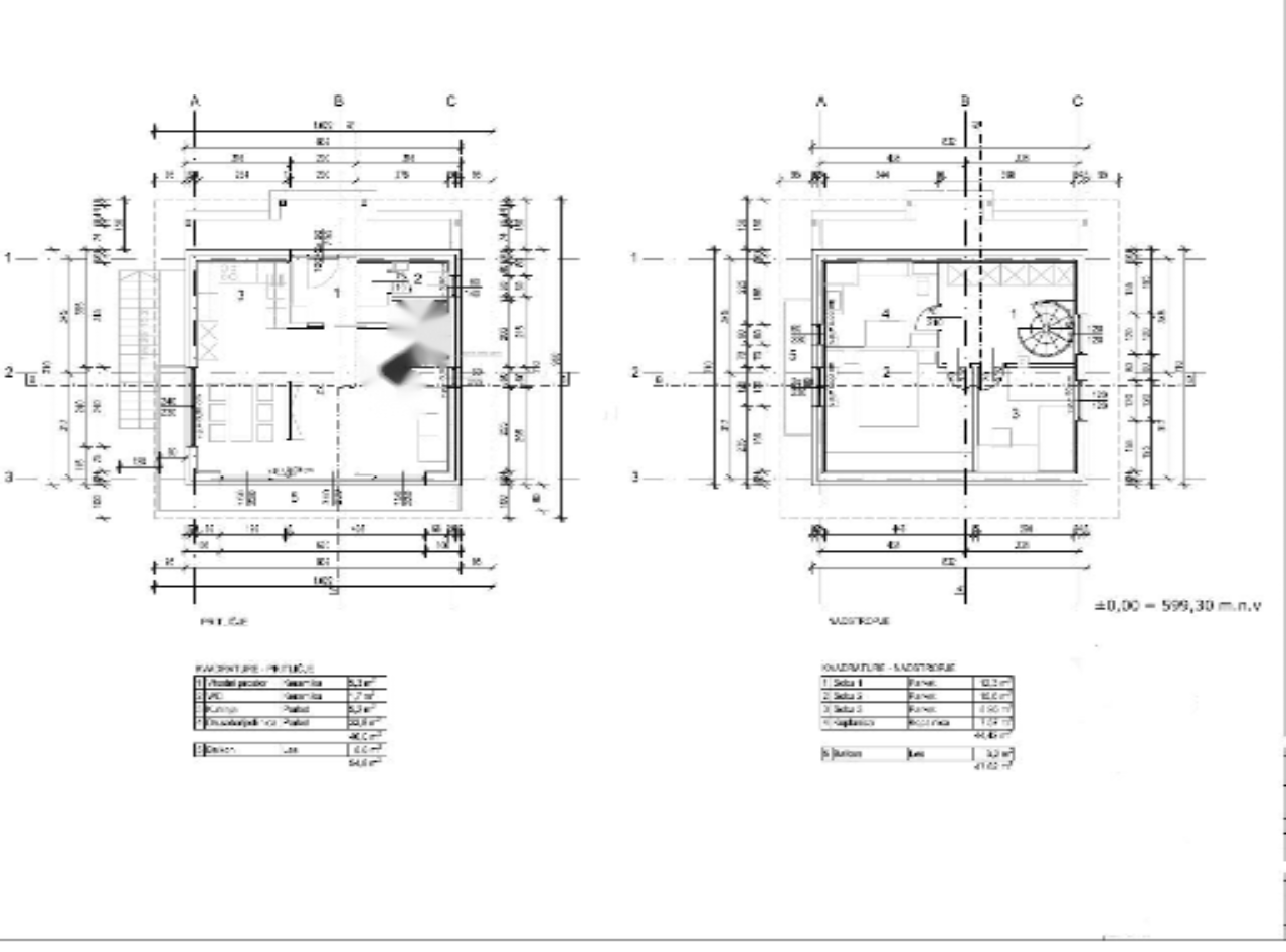
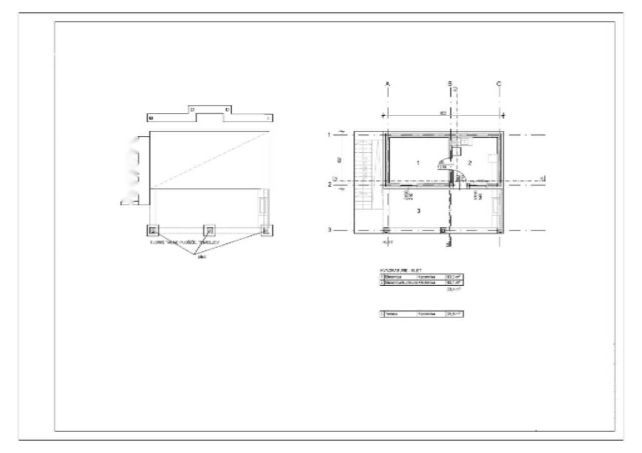
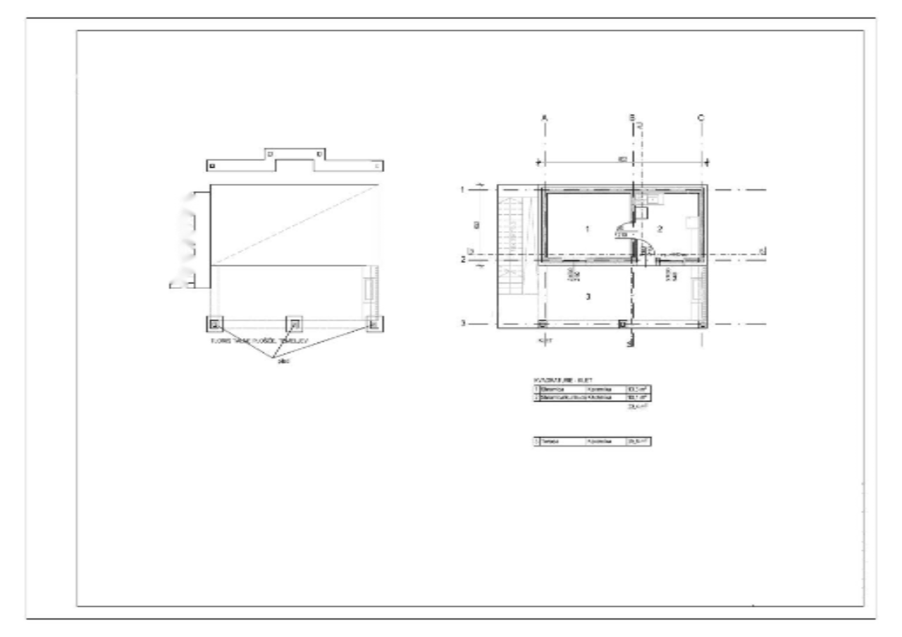
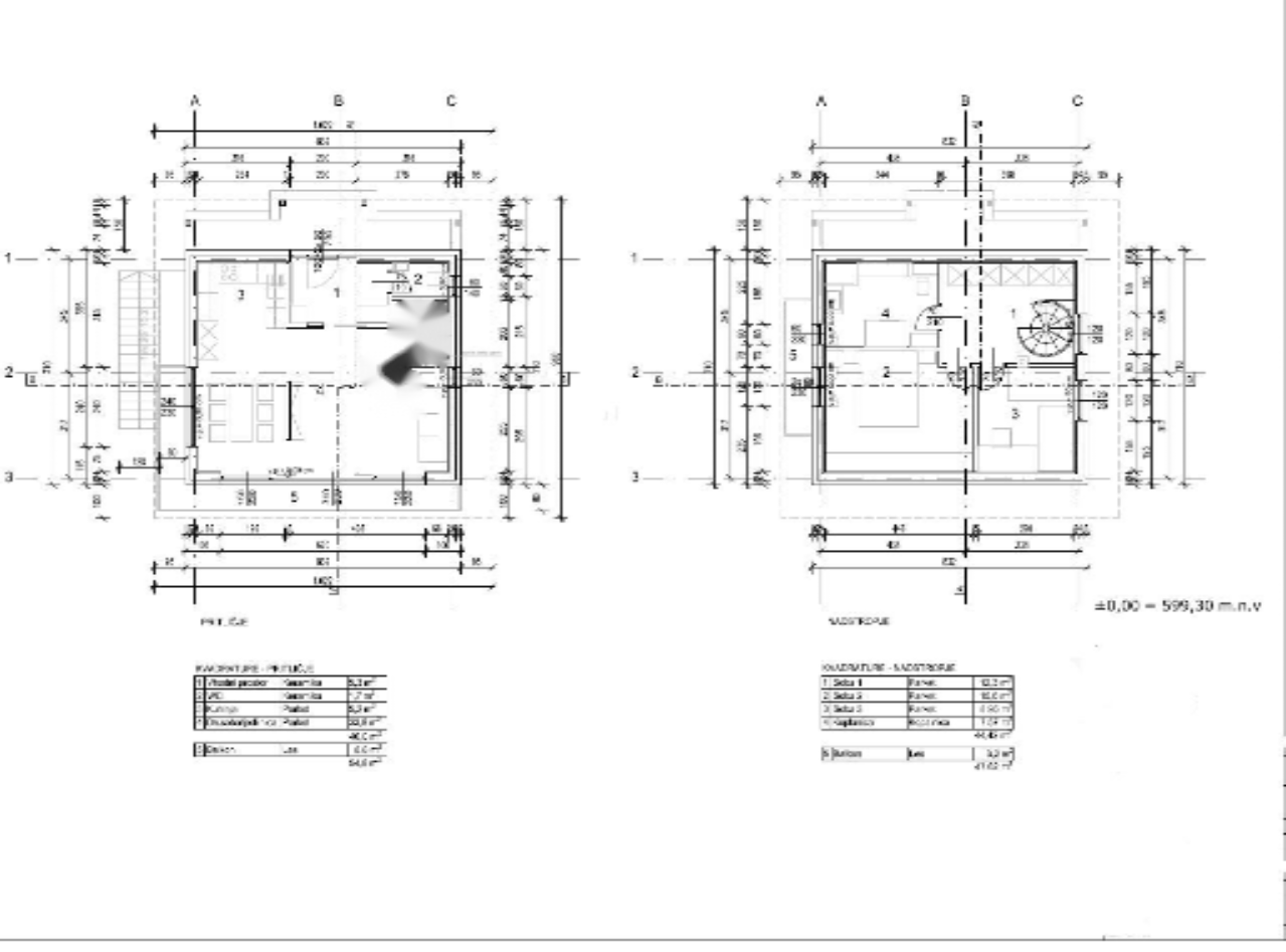
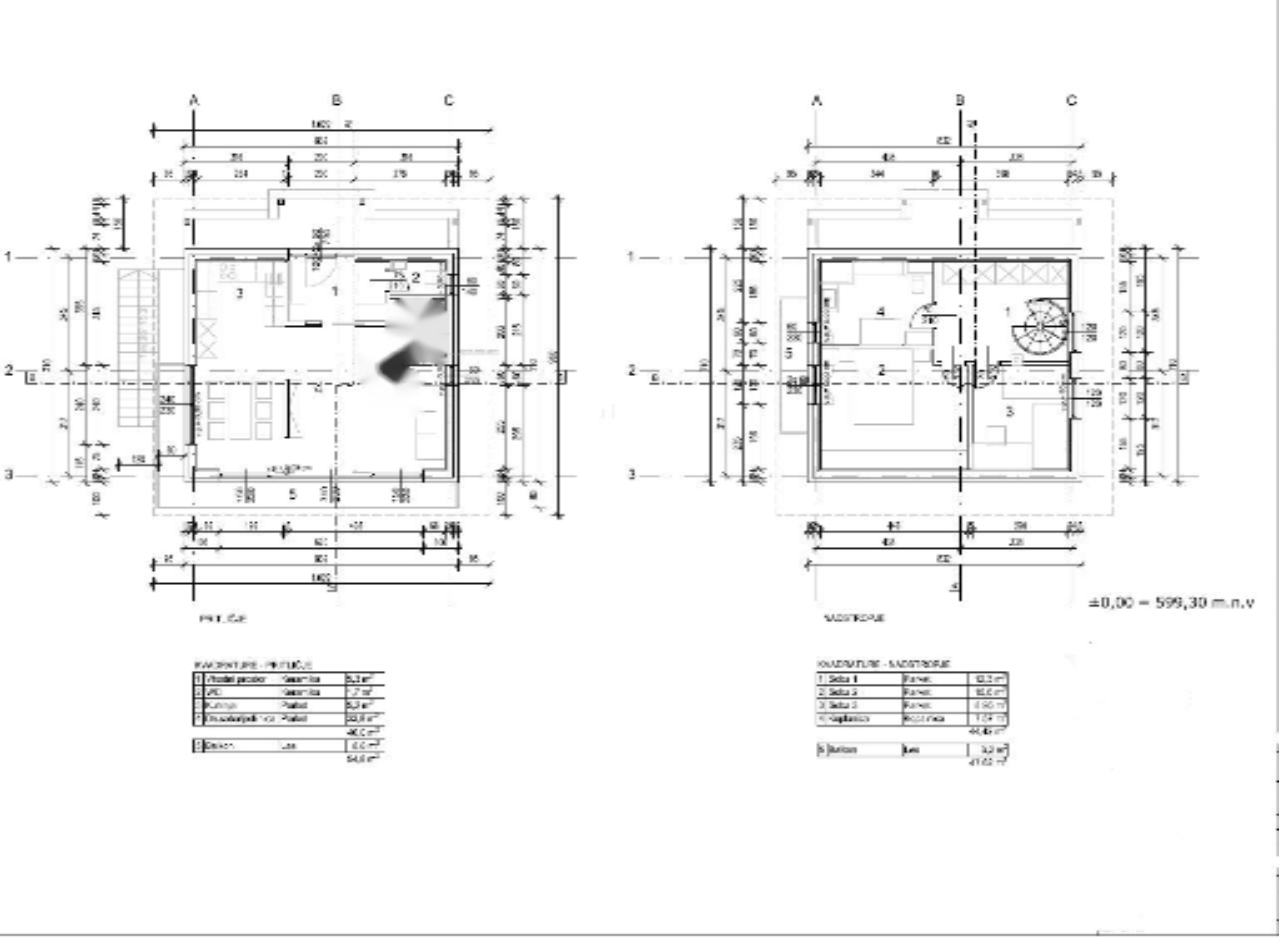
Архитектурные особенности местности позволяют возвести здания с уникальными решениями. Рельеф участка с наклоном в 23° дает возможность построить дом с гаражом и этажом, которые будут "парить" над землей, обеспечивая панорамный вид. При этом предусмотрено строительство одноэтажного дома с мансардой и подвалом, общей площадью около 150 м².
Коммуникационная готовность участка высока: имеется согласие на подключение к электрической сети, разработан проект электроснабжения. Все необходимые сервитуты документально оформлены и оплачены. Муниципалитет обязуется обеспечить доступ к дороге, как только к участку будут проложены коммунальные линии.
Участок находится в живописной альпийской деревне Горье, расположенной в 3 км от Бледа. Рядом протекает каньон реки Радовны Винтгар — одно из самых захватывающих природных достопримечательностей Словении. Регион характеризуется спокойствием, элементами дикой природы и близостью к крупным туристическим местам, таким как Бохинь, Краньска-гора и Мойстрана.
Инвестиционная привлекательность участка оценивается на уровне 9 из 10. Возможность использования для коммерческих нужд, а также для личного жилищного строительства делает его особенно привлекательным для инвесторов. Дополнительное преимущество — гибкость изменений в проектной документации, что позволяет инвестору легко адаптировать проект под свои нужды.
Итоговая стоимость: 173 680 EUR