
499 990 €
499 990 €
Современный дом с террасой в районе Любляны, Трновске Предместье (Ракова Ельша), предлагает качественное жилье и превосходную инвестиционную возможность. Строительство планируется завершить до конца 2025 года, дом будет построен в 3-й подлиненной стадии строительства.
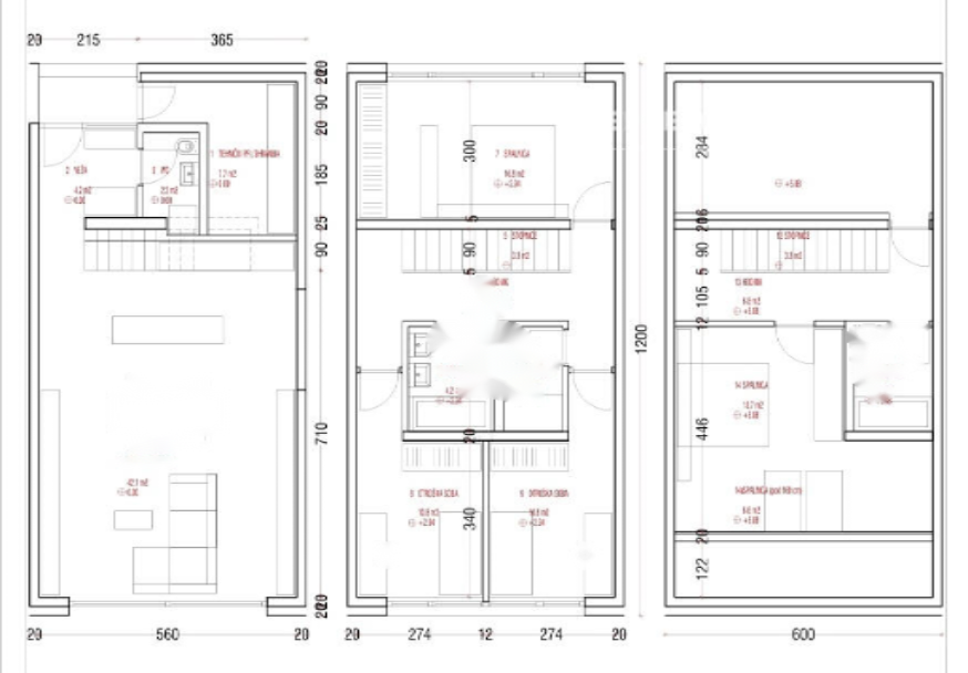
Дом в 220 м² включает первый этаж, второй этаж и мансарду. Просторная жилая площадь составляет 145,2 м², а также есть терраса 8 м² и земельный участок 241 м². Дом снабжен новейшими удобствами, включая напольное отопление, работающий на тепловой насос системе. В доме предусмотрены комфортабельные условия проживания, с тремя спальнями, тремя ванными и гостиной зоной с выходом на террасу.
Это эксклюзивное предложение расположено в спокойной тупиковой улице и всего в нескольких минутах от центра города. В непосредственной близости находятся детский сад, магазины, банк, почта и рестораны. Центр города, торговый центр "Рудник" и выезд на Люблянскую кольцевую дорогу находятся всего в пяти минутах езды, что делает местоположение крайне удобным.
Экологически чистый район располагает множеством прогулочных и туристических маршрутов вдоль реки Любляница, которая находится всего в 50 метрах от дома.
Технические характеристики:
Стоимость: 499 990,00 EUR