
529 000 €
529 000 €
Представляем вашему вниманию двухэтажный дом в стадии строительства, расположенный в районе Рудник в Чёрной Васи, Любляна. Этот новый проект станет прекрасным решением для семей, а также людей старшего возраста, предлагая современный и комфортный образ жизни в гармонии с природой.
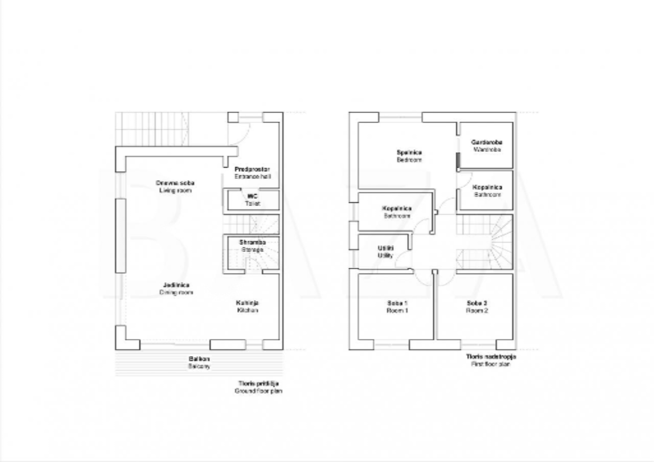
Дом общей площадью 136,5 м² занимает участок размером 229 м². Планировка включает на первом этаже: прихожую, гостевой санузел, хранилище, просторную жилую зону с кухней и столовой, а также балкон. На втором этаже расположены прачечная, ванная комната, две детские комнаты и основная спальня с собственной ванной комнатой и гардеробной.
Дом будет выполнен по высоким стандартам энергоэффективности с использованием качественных материалов: ПВХ окна с тройным стеклом и входная дверь с противовзломной защитой. Из отопительной системы предусмотрена тепловая помпа, для обеспечения горячей воды также используется этот источник. В стоимость входит обустройство территории с двумя парковочными местами и зелёной зоной.
Жилое пространство ориентировано на восток-запад, что позволяет наслаждаться дневным светом в течение всего дня. Недалеко находятся автобусная остановка, рестораны, а также многочисленные зоны для прогулок и отдыха на свежем воздухе.
Покупатели имеют возможность выбора окончательных отделочных материалов, включая напольные и настенные покрытия, сантехническую керамику и арматуру, внутренние двери и цветовую гамму интерьера. Доступна установка жалюзи за дополнительную плату.
Технические характеристики:
Цена: 529 000 евро
Срок завершения строительства запланирован на конец 2025 года.