
580 350 €
580 350 €
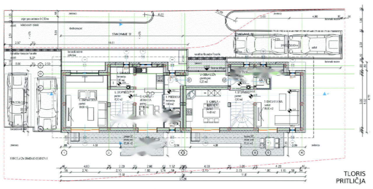
Продается новый двухквартирный дом с собственным атриумом на тихой и уютной улице в Малой Васи, недалеко от района Бежиград в Любляне. Строительство началось в 2021 году. Объект создан для тех, кто ценит сочетание спокойствия и отличной доступности к городской инфраструктуре.
Дом, общей площадью 203,2 м², имеет подвал, первый и второй этаж. Земельный участок размером 266 м² включает в себя приводные пути площадью 36 м² и участок под застройку размером 230 м². Особое удобство создает свой атриум площадью 13,3 м², который является идеальным местом для отдыха.
Цена: 580 350 €