
492 100 €
492 100 €
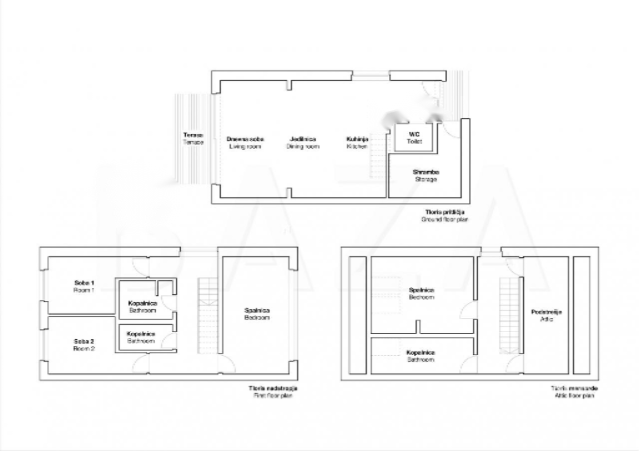
На эксклюзивной и тихой улице в районе Трново — Трновское предместье (Ракова Йельша) предлагается современный дом с террасой площадью 145,2 м². Начало строительства запланировано на 2025 год. Участок площадью 144,4 м² располагает двумя собственными парковочными местами. Дом идеально сочетает близость к центру города и комфортное окружение с природой . Рядом детский сад, магазины, банк, почта, рестораны и спортивные маршруты вдоль Любляницы. Также есть удобный доступ к объездной дороге и торговому центру Рудник .
Дом будет построен в три уровня: подвал, первый этаж и мансарда, общая площадь составит 213 м², из которых 145,2 м² занимают жилые помещения и 8 м² — терраса. В подвале предусмотрен входной холл, кладовая и техническое помещение, отдельный туалет, а также открытая гостиная зона с кухней и столовой, выходящие на террасу и сад. На втором этаже находятся три спальни, коридор и две ванные комнаты с туалетами . Мансарда включает дополнительную спальню, коридор и ещё одну ванную комнату с туалетом.
Дом строится до третьей расширенной строительной фазы с выполненными фундаментами, несущими конструкциями, крышей с изоляцией, фасадом, окнами и дверьми, а также базовыми установками. Для комфорта предусмотрено современное отопление с тепловым насосом, подключенным к системе напольного отопления. Коммунальные подключения и доступ к зданию будут обеспечены. Возможно выполнение дома «под ключ» за дополнительную плату, что позволит полностью адаптировать интерьер по вашему вкусу.
Цена: 492.100,00 EUR