
1 050 000 €
1 050 000 €
Предлагаем к покупке уникальный двухэтажный дом в престижном районе Рожна Долина в Любляне, площадью 176,4 м², на участке 150 м². Эта новостройка, ожидающая завершения в 2025 году, сочетает в себе современный функциональный дизайн и технологические инновации, обеспечивающие низкое энергопотребление .
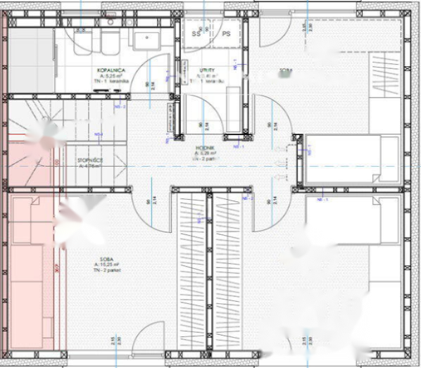
Дом состоит из трех этажей, связанных стильной архитектурой. На первом расположены центральное пространство с кухней, столовой и гостиной, которые выходят на террасу и зеленую зону, а также прихожая, кладовая, санузел и техническое помещение. Второй этаж укомплектован тремя спальнями, кладовкой и ванной комнатой. На третьем находится просторная спальня с выходом на большую западную террасу, а также ванная комната .
Качество строительства на высочайшем уровне: тепловой насос, напольное отопление, системы рекуперации воздуха, окна с тройным остеклением и подометными жалюзи. Установлены алюминиевые входные двери и металлические ограждения на террасах. Керамика в ванных комнатах высшего ценового сегмента, по тёплым полам уложен высококачественный дубовый паркет.
На территории дома предусмотрено два парковочных места . Дом расположен на востребованной локации, недалеко от центра Любляны, с быстрым доступом к общественному транспорту и всей необходимой инфраструктуре: детские сады, школы, почта, университеты и медицинский центр в непосредственной близости. Это уникальная возможность для тех, кто ценит комфорт и уединение.
Цена: 1 050 000,00 EUR