
649 000 €
649 000 €
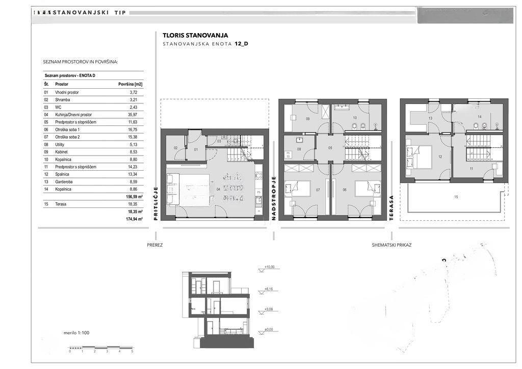
Предлагается новый дом с террасой на Виче, общей площадью 179,53 м². Построен в 2022 году на участке в 154,31 м². Здание включает подвал + первый этаж + два верхних этажа, обеспечивая простор для комфортной жизни.
Дом располагается в тихом месте с южной ориентацией, рядом с природой , что создаёт идеальные условия для спокойного проживания. Просторная терраса и ухоженный атриум дополняют общее впечатление. Особое внимание уделено высококачественным материалам и современным планировкам.
В парковой зоне нового закрытого комплекса на Виче, насчитывающего 17 домов с разнообразными планировками, обустроены новая растительность и детская площадка. Дом полностью готов к заселению, с завершённой 3-й строительной фазой и возможностью немедленного заселения.
Дом оснащён следующими коммуникациями: электричество , водоснабжение, телекоммуникации , отопление на газ, предусмотрено подключение для теплового насоса.
Дом находится в стратегически удобном месте : быстрое сообщение с центром города Любляна и окружной дорогой. Вся необходимая инфраструктура для комфортной жизни расположена рядом.
Архитектурные особенности комплекса: ж/бетонные конструкции, качественная термоизоляция, энергосберегающие окна с трехслойным стеклопакетом, продвинутая система безопасности.
Цена: 649 000 EUR