
674 916 €
674 916 €
| Цена продажи | 674 916 € |
| Цена за кв.м. | 5 818.24 € |
| Площадь | 116 м² |
| Этаж | 2 |
| Всего комнат | 4 |
| Количество спален | 1 |
| Количество ванных | 2 |
| Стадия строительства | Строящийся объект |
| Срок сдачи | 2028 |
| Адрес | Словения, Любляна |
| Тип | Четырехкомнатные квартиры и более |
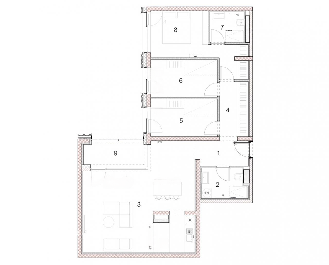
Предлагается четырехкомнатная квартира площадью 115,98 м² в новом жилом комплексе Новая Бежиград, который строится на месте старой бежиградской типографии, между улицами Толстого и Машера-Спашичевой в Любляне. Квартира расположена на втором этаже девятиэтажного здания и будет сдана в эксплуатацию летом 2028 года.
Комплекс Новая Бежиград отличается зелеными, открытыми и светлыми пространствами. Благодаря современному террасному дизайну создаются условия для наличия зеленых зон даже на верхних этажах, а большие стеклянные поверхности открывают доступ свету и прекрасным видам на величественные Юлийские Альпы. Здание возводится из качественных и долговечных материалов, рассчитанных на долгую эксплуатацию и устойчивость к внешним воздействиям.
Жилые комнаты квартиры светлые и просторные с воздушной атмосферой. В большинстве квартир предусмотрено наличие хотя бы одного внешнего пространства, с которого открываются виды на окружающую природу и горы. Весь комплекс утопает в зелени, что обеспечит свежий воздух и комфортную температуру в любое время года.
В квартире имеются: прихожая, две ванные комнаты, гостиная с кухней и столовой, кабинет, гардеробная, спальня, лоджия и кладовая.
Цена: 674 916,00 EUR