
672 936 €
672 936 €
| Цена продажи | 672 936 € |
| Цена за кв.м. | 5 955.19 € |
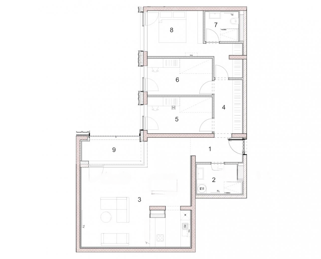
| Площадь | 113 м² |
| Этаж | 3 |
| Всего комнат | 4 |
| Количество спален | 3 |
| Количество ванных | 1 |
| Стадия строительства | Строящийся объект |
| Срок сдачи | 2028 |
| Адрес | Словения, Любляна |
| Тип | Четырехкомнатные квартиры и более |
Предлагаем современную новостройку площадью 112,98 м² в районе Бежиград, расположенную на третьем этаже девятиэтажного здания, строительство которого завершится в 2028 году. Апартаменты состоят из четырех комнат, включая три спальни и одну ванную комнату, и находятся в перспективной жилой зоне Новый Бежиград, построенной на месте старой типографии.
Проект Новый Бежиград, расположенный между Толстовской улицей и улицей Машера-Спашичеве, предлагает новую концепцию развития района — зеленую, открытую и светлую среду. Современная архитектура террасного типа предусматривает создание зеленых зон даже на верхних этажах. Большие стеклянные поверхности в квартирах позволяют наслаждаться обилием дневного света и волшебными видами на великолепные Юлийские Альпы. Здание возводится из качественных и долговечных материалов, обеспечивающих долговременную эксплуатацию и устойчивость к природным воздействиям.
Жилые помещения светлые и просторные, с максимальным числом внешних пространств, идеально подходящих для отдыха и наслаждения видом на окружающую местность и величественные горные пейзажи. Особое внимание уделено интеграции зелени, которая создает свежий воздух и комфортный температурный режим в окрестностях.
Цена: 672 936,00 EUR