
1 200 000 €
1 200 000 €
| Цена продажи | 1 200 000 € |
| Цена за кв.м. | 7 594.94 € |
| Площадь | 158 м² |
| Этаж | 1 |
| Всего комнат | 4 |
| Количество спален | 3 |
| Количество ванных | 2 |
| Стадия строительства | Строящийся объект |
| Срок сдачи | 2025 |
| Адрес | Словения, Любляна |
| Тип | Четырехкомнатные квартиры и более |
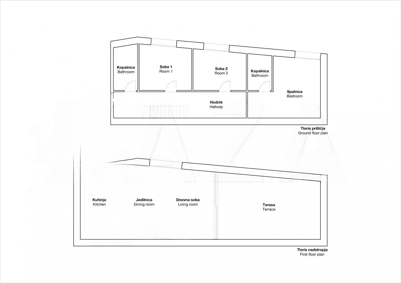
В одном из самых престижных и зеленых районов Любляны расположена современная 4-комнатная квартира с общей площадью 158,70 м². Этот уникальный объект находится под холмом Рожник, в новом двухквартирном доме на тихой улице.
Квартира включает цокольный этаж, первый этаж и мансарду, оснащена собственным лифтом для удобства посещения всех уровней. В первом этаже размещены спальня, две дополнительные комнаты и две ванные комнаты. Жилая зона находится на мансарде и включает кухню, столовую и гостиную, соединённую с большой террасой площадью 38,80 м², а также просторным частным атриумом.
Дом построен по самым современным стандартам из бетона и железобетона, с двускатной крышей, что обеспечивает функциональное распределение помещений и высокий уровень приватности. Полы с подогревом, наличие теплового насоса для подогрева воды и современные сплит-системы кондиционирования создают комфортную атмосферу в доме.
Здание является работой известного архитектурного бюро Bevk Perović и выполнено с использованием высококачественных материалов. Окна из массивного сибирского лиственника, входная дверь звукоизолирована. Установлены современные системы затемнения и высококачественная внутренняя подсветка.
Объект находится в окружении зеленых зон, рядом с местами для отдыха, идеально подходит для пар, семей и пожилого возраста. Животные разрешены. Помимо двух парковочных мест, предусмотрена подготовка для индивидуальной зарядной станции для электрического транспорта.
Цена: 1 200 000 EUR