
413 175 €
413 175 €
| Цена продажи | 413 175 € |
| Цена за кв.м. | 7 123.71 € |
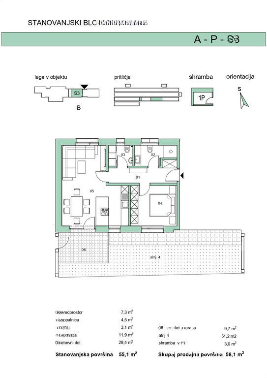
| Площадь | 58 м² |
| Этаж | 1 |
| Всего комнат | 2 |
| Стадия строительства | Строящийся объект |
| Срок сдачи | 2025 |
| Адрес | Словения, Любляна |
| Тип | Двухкомнатная квартира |
Предлагается к продаже двухкомнатная квартира в районе Надгорица, Любляна, новостройка площадью 58 м², расположенная на первом этаже двухэтажного современного жилого комплекса. Вход в этот жилой комплекс возможен сразу после покупки. Объект отличается энергетической эффективностью класса А2, достигаемой за счет современного строительства с применением качественных материалов и высокой термоизоляцией.
Квартира включает в себя просторный атрий площадью 51,2 м² и террасу 9,7 м², что предоставляет великолепные возможности для отдыха на свежем воздухе. Квартира снабжена всеми необходимыми удобствами: кладовая в подвале, парковочное место с предустановленной возможностью для зарядки электромобилей, подъемник, а также современные коммуникации, такие как локальные рекуператоры и подводка для установки климатической системы.
Интерьер квартиры выполнен с использованием высококачественных материалов: напольное покрытие из дубового паркета, окна из ПВХ с тройным остеклением и автоматическими жалюзи. В ванной комнате установлены все необходимые сантехнические приборы. Отопление обеспечивается с помощью газового котла с системой теплого пола в комнатах и дополнительными электрическими радиаторами в ванной.
Цена: 413 175 EUR