
432 540 €
432 540 €
| Цена продажи | 432 540 € |
| Цена за кв.м. | 6 268.7 € |
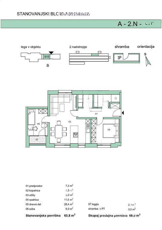
| Площадь | 69 м² |
| Этаж | 2 |
| Всего комнат | 3 |
| Стадия строительства | Строящийся объект |
| Срок сдачи | 2025 |
| Адрес | Словения, Любляна |
| Тип | Трёхкомнатная квартира |
Современная трехкомнатная квартира площадью 69 м² расположена в Надгорице, в новом жилом комплексе, рассчитанном на 16 квартир. Жилье класса A2 обеспечивает низкое энергопотребление благодаря качественной термоизоляции и современным решениям строительства.
Расположенная на втором этаже из двух, квартира привлекает функциональной и современной планировкой. Удобства включают в себя крытый балкон и собственное парковочное место с возможностью установки зарядной станции для электромобилей. Дополнительно имеется подвальная кладовая. Особенностью комплекса является детская площадка и игровые зоны, что делает его идеальным для семей.
Инфраструктура превосходна — рядом находятся все необходимые объекты, при этом легко добраться до центра Любляны и автомагистрали. Близость к природе и спокойное окружение обеспечивают комфортное проживание.
В квартире: ПВХ окна с тройным остеклением, дубовый паркет, газовое отопление с теплым полом, подготовленные климатические установки, видеодомофон, санузел с установленной сантехникой.
Цена: 432 540,00 EUR