
1 050 000 €
1 050 000 €
Просторная двухэтажная квартира в современном многофункциональном доме, расположенная в розовой долине, Любляна. Новостройка 2025 года с общей площадью 176,4 м², из которых 146,0 м² занимают жилые помещения. Терраса размером 30,4 м² и зелёный атриум обеспечивают комфортное окружение для жителей.
Объект расположен в престижном районе, предлагающем гармонию с природой и близость к центру города. Пешая доступность до парка Тиволи и Рожника делает дом идеальным для активного отдыха. В шаговой доступности находятся школы, детские сады, спортивные сооружения и другие объекты инфраструктуры. ️️
Дом поделён на два жилых помещения с отдельными входами. Строительство выполнено из высококачественных материалов с использованием передовых технологий, обеспечивая минимальные затраты на энергопотребление. Планировка предусматривает максимальное удобство проживания в зависимости от времени года и жизненных этапов.
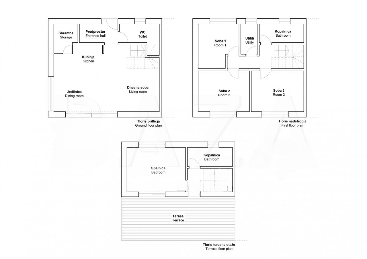
На первом этаже находятся прихожая, санитарный узел, технические помещения, открытая гостиная с кухней и обеденной зоной, доступ в зелёный атриум. Второй этаж включает три спальни, ванную и помещение для стирки. На верхнем этаже — главная спальня с ванной и просторной крытой террасой с открытым видом. Состояние объекта и ориентация на северо-восток / юго-запад обеспечивают обилие естественного света. ️
Дом полностью подключён к городским сетям и готов к заселению. Общая стоимость объекта составляет 1 050 000 EUR.