
449 990 €
449 990 €
Вашему вниманию предлагается современный дом с террасой в новостройке в престижном районе Любляны Трновское предместье, на тихой улице с ограниченным движением. Это замечательное место сочетает в себе близость к центру города и быстрый доступ к необходимой инфраструктуре: детскому саду, магазинам, банкам, почте , ресторанам и прогулочным маршрутам вдоль реки Любляницы. Также здесь удобный подъезд к кольцевой дороге и торговому центру Рудник.
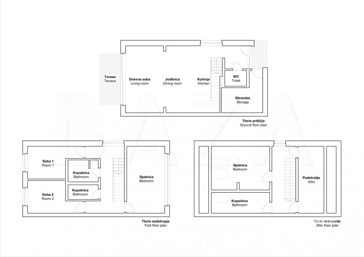
Дом имеет три этажа: первый этаж, второй этаж и мансарду. Общая площадь дома составляет 213,00 м², из которой 145,20 м² — жилая площадь. Рядом имеется участок размером 144,40 м², включающий две собственные парковочные места и 8,00 м² террасы.
На первом этаже расположены: прихожая, кладовая/техническая комната, отдельный туалет, а также просторная гостиная с кухней и столовой, соединенная с террасой и садом через большие стеклянные двери. Второй этаж включает три спальни, коридор и две ванные комнаты с туалетом. На мансарде находится дополнительная спальня, коридор и ещё одна ванная комната с туалетом.
Строительство дома будет завершено до 3-й удлиненной стадии, включающей в себя фундамент, несущую конструкцию, крышу с изоляцией и фасад, а также установку окон и дверей из ПВХ/АЛЮ и подготовку основных коммуникаций. Предусмотрено современное отопление с помощью теплового насоса, соединенного с системой напольного отопления. Подключены все коммунальные услуги, обеспечен доступ к дому. Возможна дополнительно полная отделка дома по Вашему вкусу.
Недвижимость идеально подходит для семей, взыскательных покупателей или инвесторов, ищущих новостройку в одном из самых желанных районов Любляны, с возможностью последующей продажи или сдачи в аренду. В продаже также имеется конечный дом с большей площадью и более крупным участком.
Цена: 449,990 евро