
1 900 000 €
1 900 000 €
Таунхаусы со стильным дизайном у моря в Марбе
Марбелья — это символ стиля, богатства и подлинного средиземноморского образа жизни на побережье Коста-дель-Соль. Здесь сочетаются современность и историческое наследие Андалусии. Атмосфера города наполнена шармом, который притягивает людей со всего мира. Этот регион предлагает не только километры живописного побережья, но и уникальную атмосферу для комфортной жизни.
Таунхаусы на продажу в Марбелье находятся в жилом комплексе всего в 400 метрах от моря, в престижном районе Эльвирия. Все необходимое — супермаркеты, рестораны, аптеки, кафе и другие удобства — расположено в пешей доступности. До главной дороги можно добраться за пару минут. Пристань Кабопино находится в 5 минутах езды, центр Марбельи — в 10 минутах, аэропорт Малаги — в 30 минутах, а центр Малаги — в 40 минутах.
Комплекс включает 36 современных таунхаусов и обширные общие зоны. Здесь есть ухоженные зеленые сады, два бассейна, коворкинг и тренажерный зал.
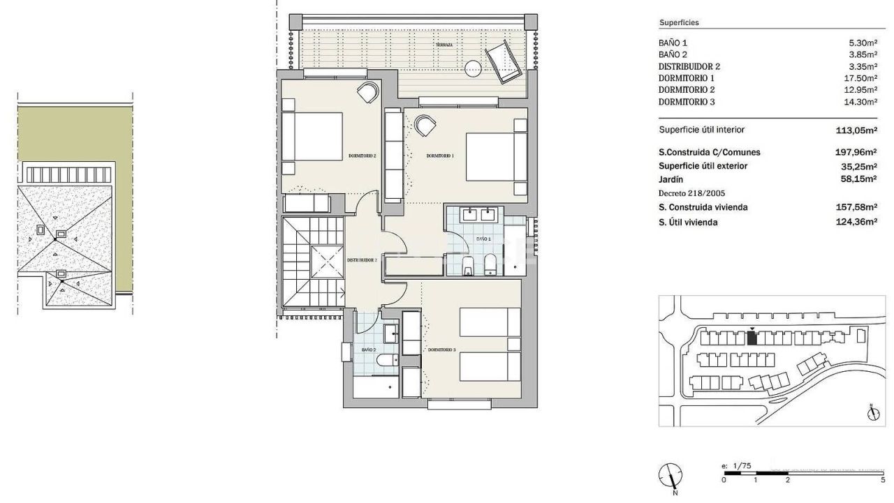
Современные таунхаусы выполнены в формате дуплекса с просторной планировкой и большим количеством естественного света. В каждом доме есть собственный сад, крытая терраса и два парковочных места. Таунхаусы оборудованы системой теплых полов и кондиционерами, а кухни полностью укомплектованы встроенной техникой.
Проект отвечает самым высоким стандартам качества и энергоэффективности. Он сертифицирован по престижной системе BREEAM, что гарантирует экологичность и экономию ресурсов.