
760 000 €
760 000 €
Отдельностоящие роскошные виллы с бассейнами
Роскошные современные виллы находятся в Финестрате – живописном городке в провинции Аликанте, в Валенсийском сообществе Испании. Расположенный между горами и Средиземным морем, он предлагает уникальное сочетание живописных пейзажей, истории и современной инфраструктуры. Город разделен на два основных района: исторический старый город, расположенный в глубине материка у подножия внушительной горы Пуиг-Кампана, и прибрежный район, известный как Кала-де-Финестрат.
Виллы в Финестрате находятся в 8 минутах езды от знаменитого Плайя-де-Поньенте – излюбленного места пляжного отдыха в Бенидорме. За 10 минут можно доехать до широкого спектра удобств, включая рестораны, аптеки, медицинский центр, торговые центры и захватывающие тематические парки в Бенидорме. Кроме того, до аэропорта Аликанте можно легко добраться за 40 минут по шоссе AP-7.
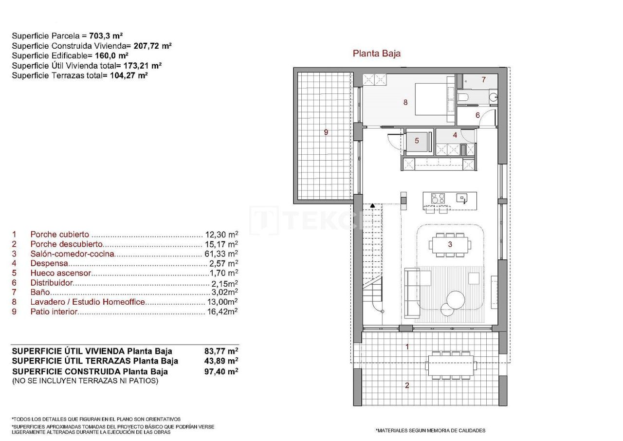
Современные дома расположены на участках площадью от 542 до 713 м². Здесь есть достаточно места для комфорта и отдыха, а также парковка и частный бассейн.
Роскошные виллы представлены в двух моделях:
В модели с 3 спальнями на первом этаже есть просторная спальня, ванная комната с душевой кабиной, кухня открытой планировки со столовой, кладовая и большая гостиная с окнами во французском стиле, которые пропускают достаточно естественного света. Наверху, на втором этаже, расположены две просторные спальни со встроенными шкафами и ванными комнатами.
В модели с 4 спальнями есть дополнительный этаж с еще одной спальней, также оборудованной ванной комнатой.