
369 000 €
369 000 €
Квартиры с бассейном в Михасе, Малага, рядом
Этот комплекс удачно расположен между прибрежными городами Фуэнхирола и Михас. Фуэнхирола славится своей природной красотой и мягким климатом круглый год. Здесь более 8 км пляжей с Голубым флагом, известные чистой водой и золотистым песком. Город привлекает уютными улочками, насыщенной общественной жизнью, живописными закатами и активной ночной жизнью. Соседний Михас очаровывает мощеными улочками и богатой культурой, дополняя энергетику Фуэнхиролы и разнообразие местной кухни.
Квартиры в Михасе, Малага, находятся всего в 1 км от торгового парка Miramar, в 1,5 км от Carrefour, в 2 км от торговых центров El Corte Inglés и Miramar, а также рядом с железнодорожным вокзалом Фуэнхиролы. До гольф-курорта Cerrado del Águila — 4 км, международного аэропорта Малаги — 26 км, Марбельи и центра Малаги — около 35 км, а до престижного Пуэрто-Бануса — 40 км.
К услугам жителей комплекса есть бассейн, зона барбекю, коворкинг-лаунж, полностью оборудованный тренажёрный зал и выделенная парковка. Здесь созданы все условия для отдыха, работы и активного образа жизни.
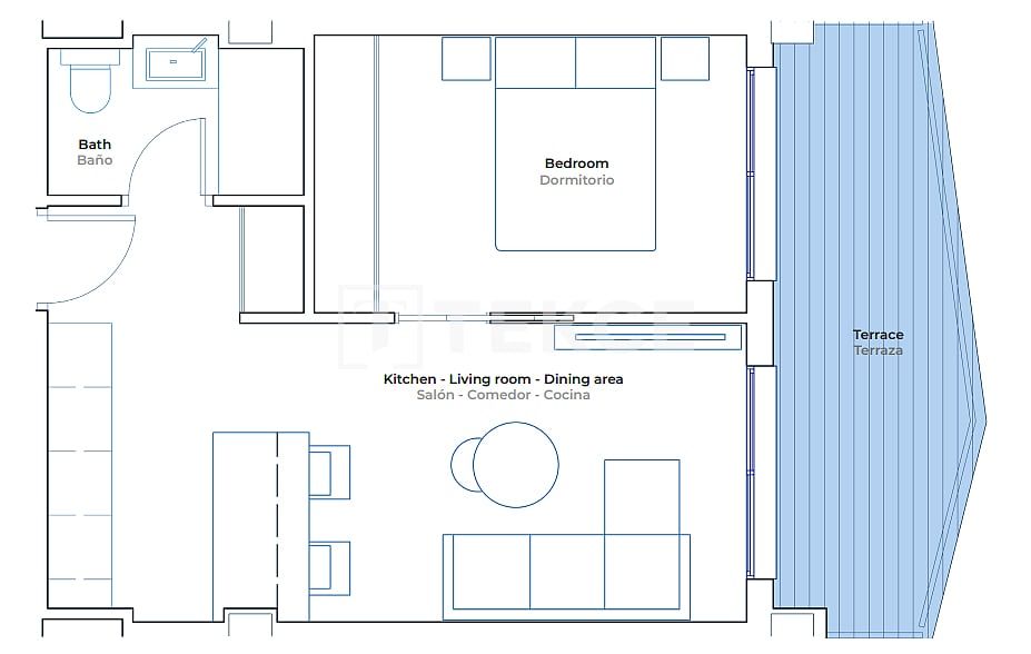
Интерьеры продуманы для комфортного современного проживания. Открытая планировка объединяет гостиную, кухню и спальню, а теплые оттенки и натуральные материалы создают уютную атмосферу. Просторная терраса становится естественным продолжением дома, позволяя наслаждаться светом и живописными видами каждый день.