
2 495 000 €
2 495 000 €
| Цена продажи | 2 495 000 € |
| Площадь дома | 272 м² |
| Площадь участка | 1 020 м² |
| Этажность | 3 |
| Всего комнат | 4 |
| Количество спален | 3 |
| Количество ванных | 4 |
| Стадия строительства | Новый дом |
| Адрес | Испания, Бенитачель, Бенитачель/Аликанте |
Вилла с панорамным видом на море в Бенитачель
Престижный район Кумбре-дель-Соль, расположенный в Бенитачель в провинции Аликанте, известен своим возвышенным прибрежным положением, мягким средиземноморским климатом и впечатляющими панорамными видами на море. Район отличается спокойной атмосферой, близостью к природе и при этом удобным доступом к повседневной инфраструктуре и зонам отдыха. Такое сочетание делает его привлекательным как для постоянного проживания, так и для долгосрочных инвестиций, предлагая сбалансированный образ жизни между уединением и удобством.
Виллу на продажу в Бенитачель, Аликанте, расположена примерно в 2 км от объектов повседневной инфраструктуры, включая магазины, кафе и рестораны, а до центра города можно добраться за 5 км. Ближайшие пляжи находятся на расстоянии около 3,5 км, поле для гольфа – примерно в 7 км от виллы, а расстояние до ближайшего аэропорта составляет около 95 км.
Вилла расположена в эксклюзивном комплексе в районе с тщательно продуманной планировкой. На территории созданы ухоженные зеленые зоны, удобные подъездные пути и выделенные парковки для резидентов. Общая концепция застройки гарантирует легкое перемещение по комплексу, сохраняя при этом атмосферу полной безопасности и приватности.
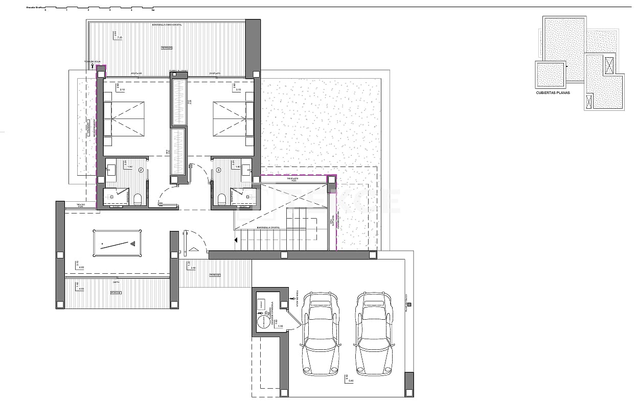
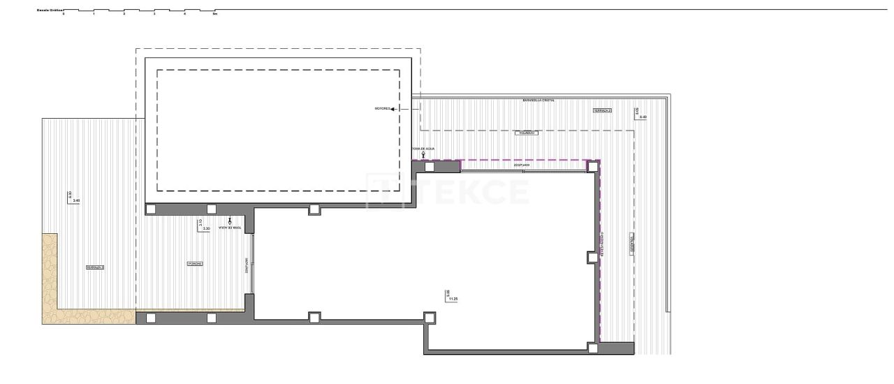
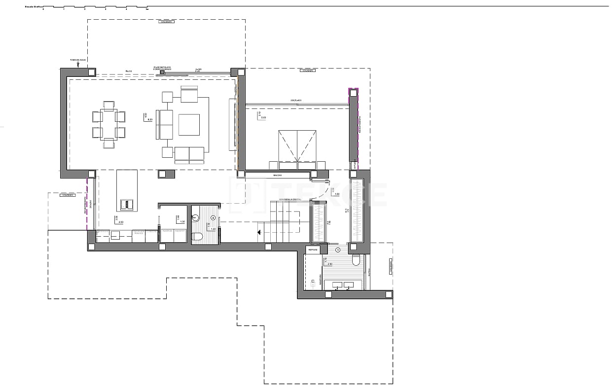
Трехэтажная вилла предлагает светлые и грамотно организованные пространства для комфортной жизни. Планировка включает современную кухню открытого типа и просторную гостиную с выходом на большую террасу к инфинити-бассейну. В доме предусмотрены 3 спальни и 4 ванные комнаты. Дополнительное преимущество – цокольный этаж с открытой планировкой, который можно адаптировать под домашний офис, игровую или зону отдыха. Продуманные детали интерьера и функциональность каждого метра делают этот дом идеальным для повседневного уюта.