
1 865 000 €
1 865 000 €
| Цена продажи | 1 865 000 € |
| Площадь дома | 215 м² |
| Площадь участка | 824 м² |
| Этажность | 3 |
| Всего комнат | 4 |
| Количество спален | 3 |
| Количество ванных | 4 |
| Стадия строительства | Новый дом |
| Адрес | Испания, Бенитачель, Бенитачель/Аликанте |
Вилла с панорамным видом на море в Бенитачель
Вилла расположена в Бенитачеле, на севере Коста-Бланки. Этот жилой район на склоне холма известен своими возвышенными видами на побережье, средиземноморской растительностью и спокойной атмосферой. Окружение сочетает природную красоту с развитой жилой инфраструктурой, что делает район комфортным для круглогодичного проживания. Здесь обеспечены приватность, виды на море и расслабленный образ жизни при сохранении удобной связи с прибрежными городами и всей необходимой инфраструктурой. Локация подходит как для постоянного проживания, так и для долгосрочных инвестиций.
Вилла расположена в удобной доступности от инфраструктуры: примерно в 1,5 км от магазинов, кафе и ресторанов, в 3 км от центра города. Песчаные пляжи находятся примерно в 5 км, ближайшее поле для гольфа – в 8 км, а международный аэропорт – примерно в 90 км.
Эта вилла на продажу в Аликанте находится в эксклюзивной жилой зоне, спроектированной с акцентом на приватность и комфорт. Окружающая застройка отличается низкой плотностью, благоустроенными средиземноморскими зелеными зонами и продуманной системой подъездов. Планировка комплекса ориентирована на простор, тишину и гармоничное сочетание с природным ландшафтом холма, обеспечивая открытые виды и высокий уровень качества жизни.
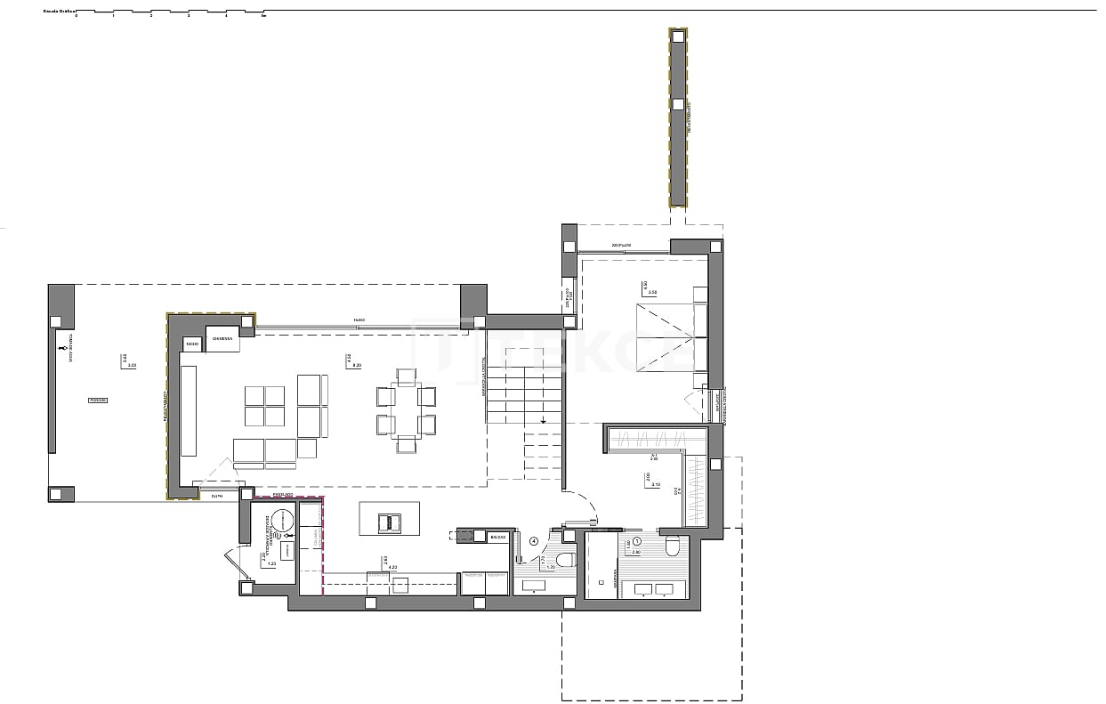
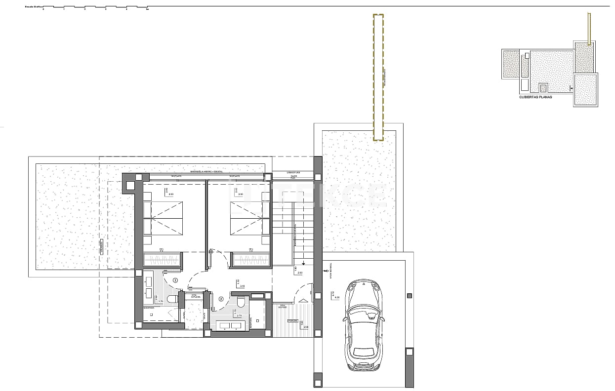
Внутреннее пространство распределено на два уровня и спроектировано с акцентом на свет, простор и комфортную жизнь с переходом между интерьером и внешними зонами. Вилла включает 3 спальни и 4 ванные комнаты, кухню открытого типа, объединенную со столовой и гостиной зоной, а также большие панорамные окна, усиливающие естественное освещение и виды на море. Дом оснащен аэротермальной системой климат-контроля, подогревом пола, механической вентиляцией с рекуперацией тепла, солнечными панелями и системой «умный дом». Все эти решения обеспечивают энергоэффективность, комфорт и современный средиземноморский стиль жизни.