
1 590 000 €
1 590 000 €
| Дополнительные расходы по сделке | |
|---|---|
| Не включены в стоимость продажи |
Современный дом с бассейном вблизи Лугано
Rif.1020
Рядом с Лугано
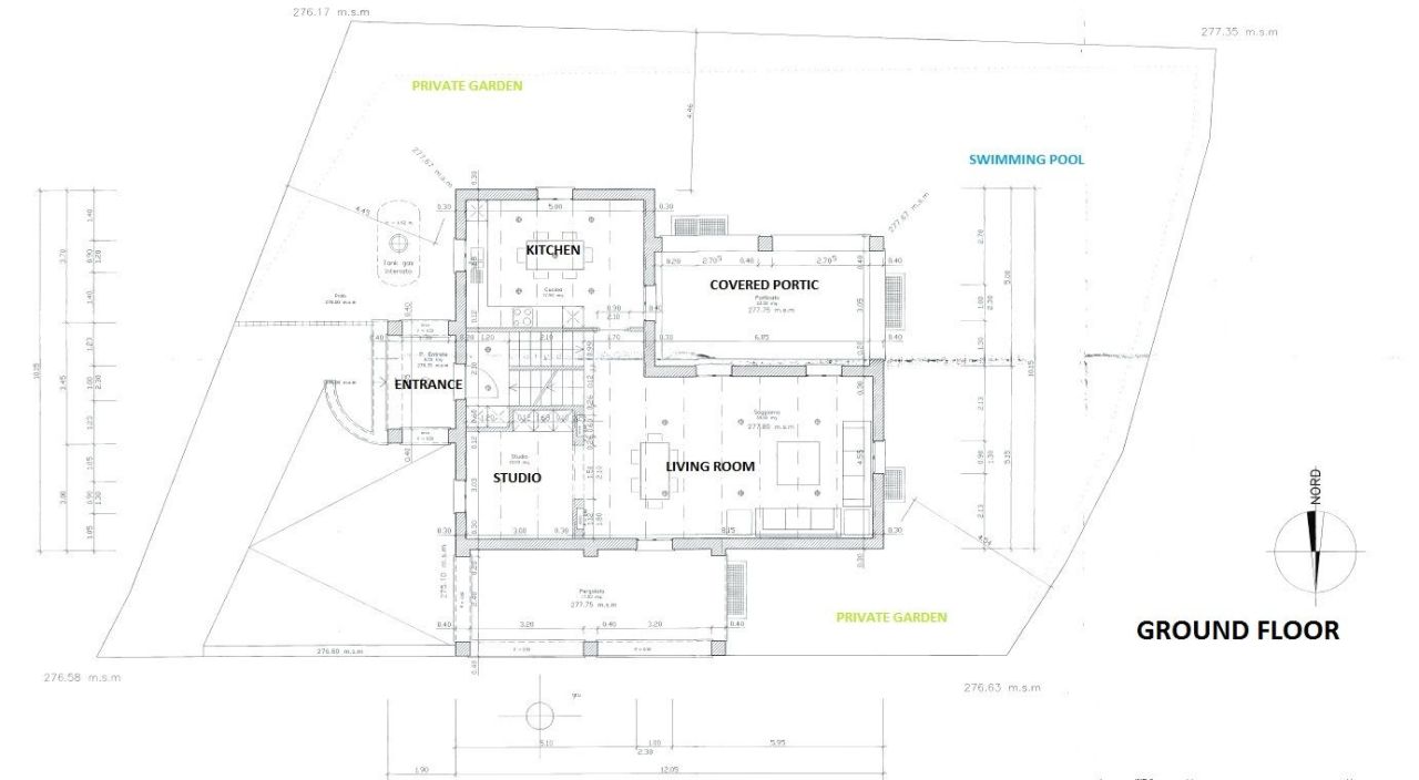
Вилла площадью около 280 м²
Участок с домом около 800 м²
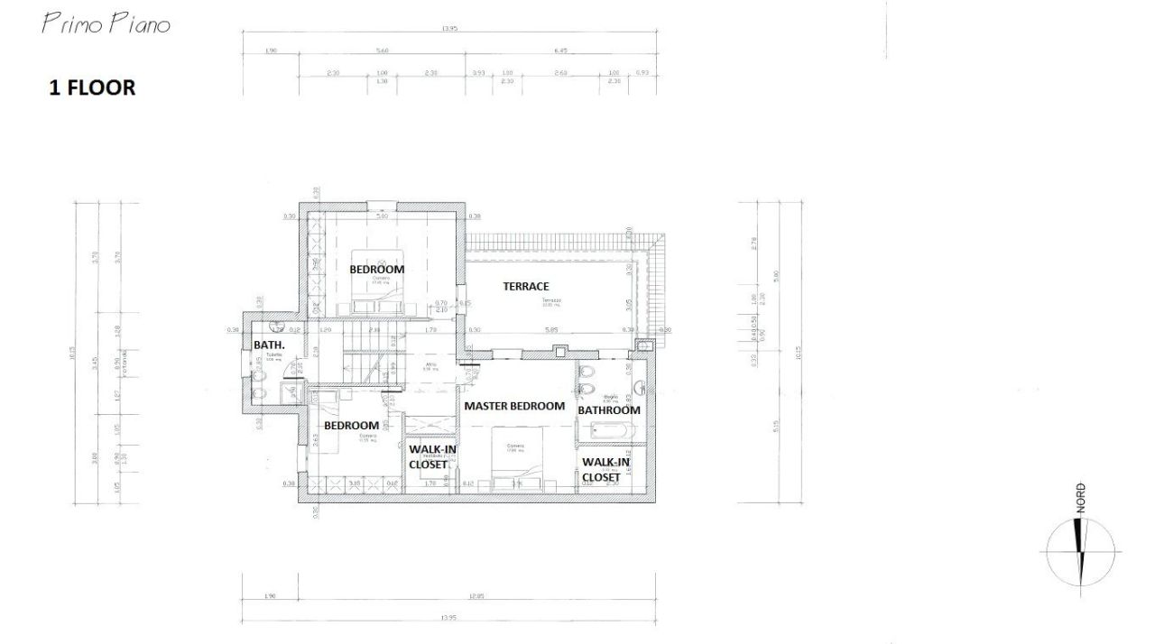
4 спальни
2 гардеробные в главной спальне
3 ванные комнаты
1 прачечная/гладильная комната
1 помещение для укрытия
Большая кухня-столовая
Гостиная
Кабинет
Отапливаемая крытая стеклянная веранда
Кабинет на цокольном этаже
Терраса на втором этаже
Бассейн с подогревом в саду с системой непрерывного противотока
2 крытых гаража
2 открытых парковочных места
Красивый, недавно построенный отдельно стоящий дом с отличной отделкой, солнечными батареями для нагрева воды и бассейна, теплыми полами на всех этажах с змеевиками, газовым котлом и газовым баллоном. Установлены система домашней автоматизации во всех комнатах и система видеонаблюдения.
Основная планировка: просторная дневная зона на первом этаже и спальни на втором и третьем этажах. На цокольном этаже расположены два больших крытых гаража, прачечная/гладильная комната и подсобное помещение/кабинет.
Этот очень практичный дом удобно расположен для поездок по Лугано и Мендризио, а также находится всего в 10 минутах ходьбы от железнодорожной станции Рива-Сан-Витале.
Примерно в 15 минутах езды от центра Лугано.
В 5 минутах езды от Кампионе-д’Италия и Моркоте.
В 10 минутах ходьбы от железнодорожной станции, откуда можно добраться до Комо-Милана или Лугано-Беллинцона-Цюриха.
Цена: 1 590 000 швейцарских франков (мебелировка включена).