
647 000 €
647 000 €
Виллы с видом на море в Измире, Гюзельбахче с
Гюзельбахче — один из самых престижных районов Измира, расположенный на берегу Эгейского моря. Это место привлекает своей спокойной атмосферой, прекрасным видом на море и удобным доступом к центру города, а также к популярным курортным зонам, таким как Чешме и Урла. В районе царит уют и уединение благодаря низкоэтажной застройке, а также высокому качеству жизни. Гюзельбахче славится чистым воздухом, отличными ресторанами морепродуктов и престижными образовательными учреждениями.
Виллы на продажу в Измире расположены всего в 20 метрах от моря. Они также находятся в 250 метрах от магазина, в 300 метрах от прибрежных ресторанов, в 1,8 км от пристани для яхт, в 3,5 км от пляжа, отмеченного Голубым флагом, и в 30 км от международного аэропорта имени Аднана Мендереса.
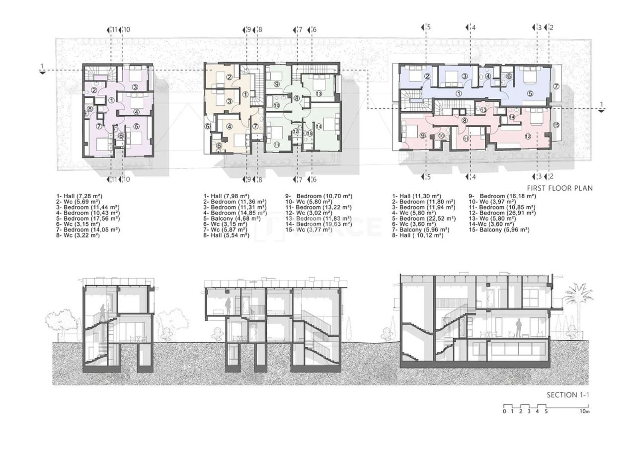
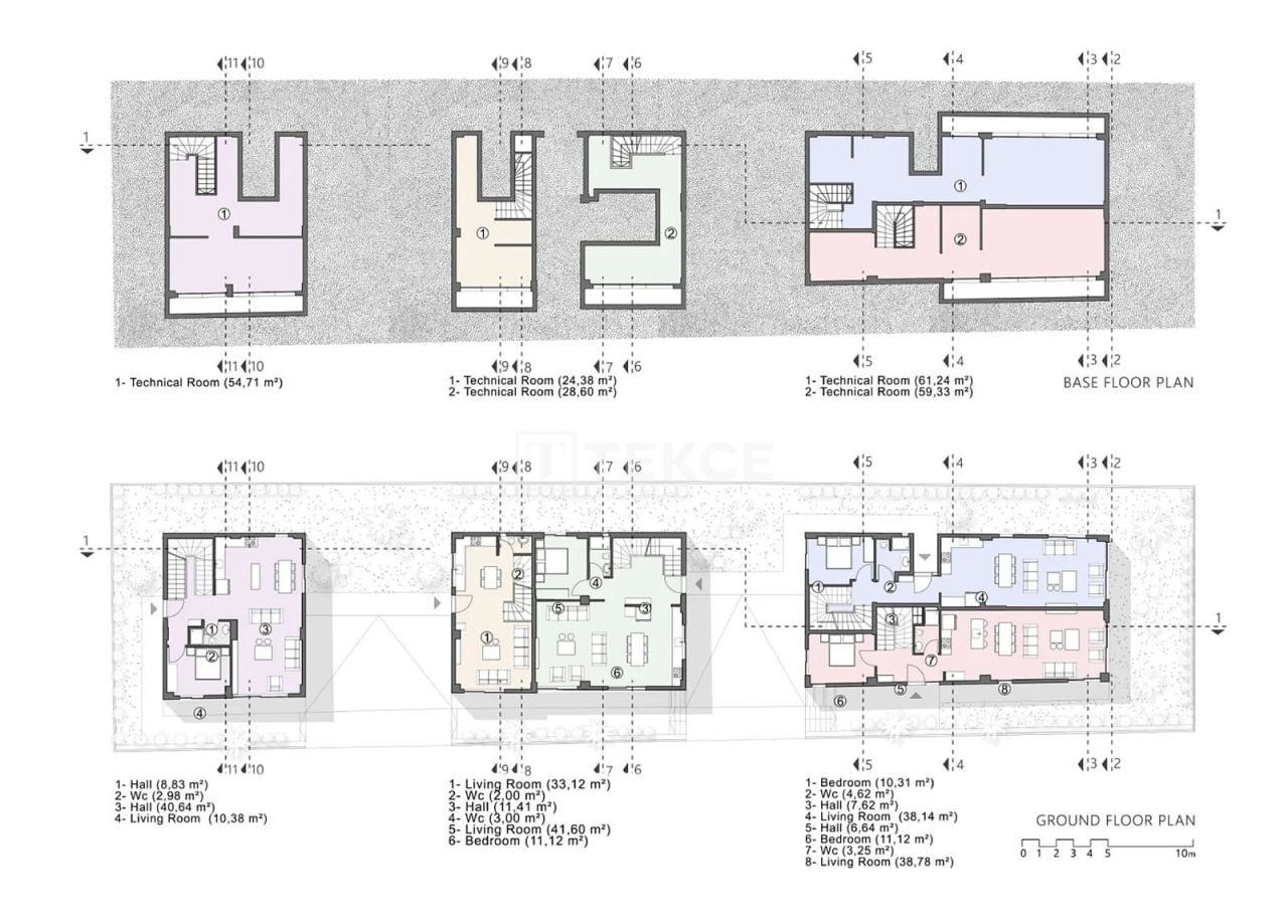
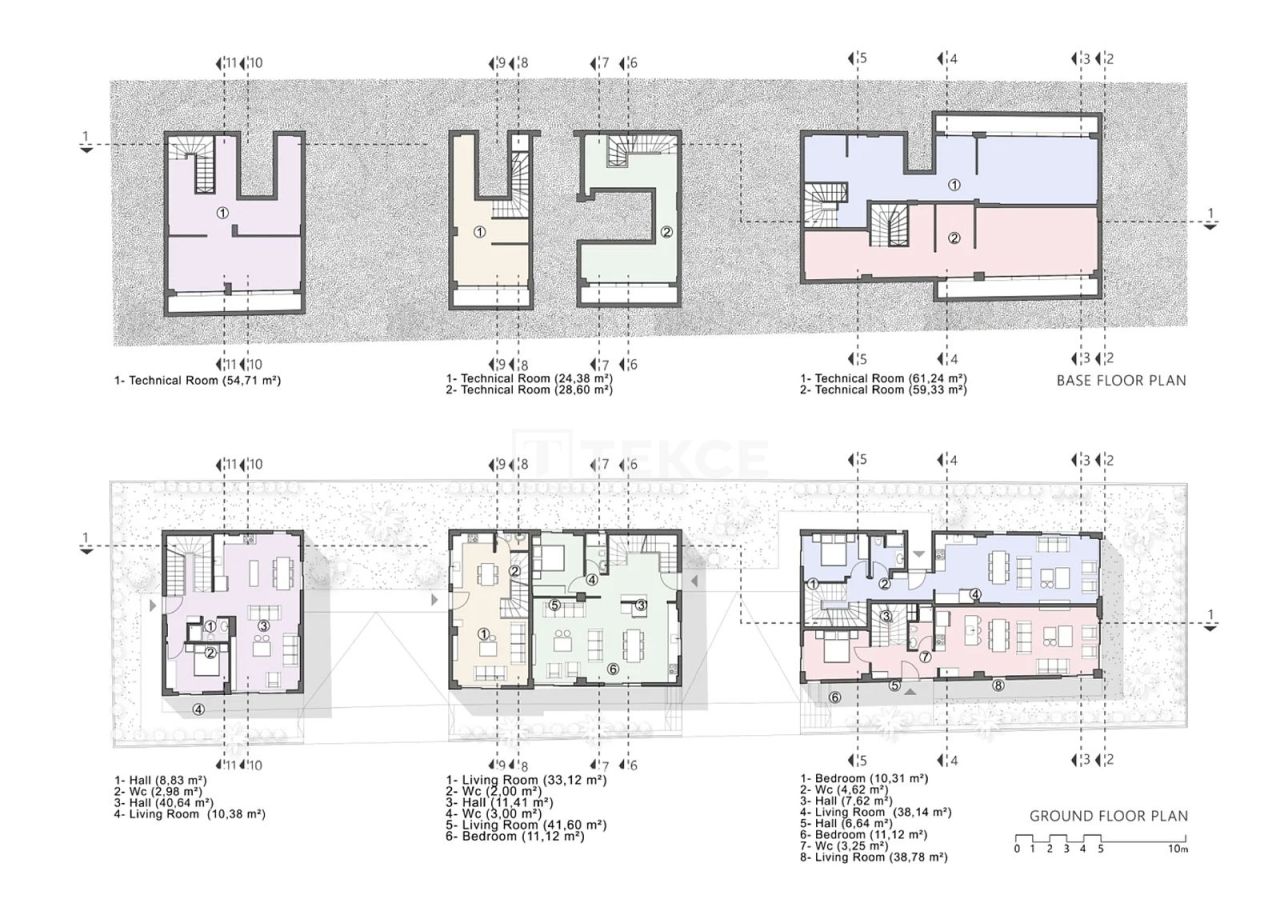
Проект занимает участок площадью 960 м² и включает 4 таунхауса и 1 отдельностоящую виллу. Каждое жилье имеет парковку, собственный сад и современный дизайн, что делает их идеальными для круглогодичного проживания.
Виллы оснащены кухнями открытой планировки, просторными гостиными, спальнями и ванными комнатами. В каждой установлены система «умный дом», лакированные шкафы для ванных комнат и кухни, фирменная сантехника, встроенная кухонная техника, душевые кабины и теплоизоляционные окна.