Недорогая недвижимость в Словении

Новые предложения в Словении
Показать больше Новые предложения
Квартира за 435 000 евро в Изоле, Словения
435 000 €
Квартира в Изоле, 111 м2
Квартира за 950 000 евро в Любляне, Словения
950 000 €
Квартира в Любляне, 247 м2
Дом за 1 390 000 евро в Бледе, Словения
1 390 000 €
Дом в Бледе, 360 м2
Квартира за 320 000 евро в Любляне, Словения
320 000 €
Квартира в Любляне, 64 м2
1/11
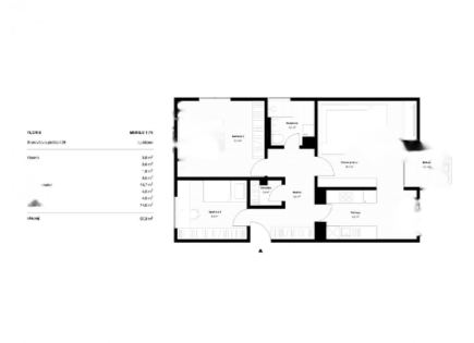
300 000 €
Квартира в Любляне, Словения
69 м2
Представляем вашему вниманию просторную и светлую трехкомнатную квартиру в районе Бежиград, Любляна. Общая площадь квартиры составляет 69 м², из которых 60,5 м² — полезная площадь. Расположена на четвёртом этаже из семи в многоквартирном доме с лифтом. Дом находится на площади Братовшеви, что обеспечивает отличный доступ к ключевым объектам...
MIRAG INVEST DOO
Не смогли найти подходящий объект?

Вы получите персональную подборку объектов в Словении по вашим требованиям.

Оставить заявку

Ищите объекты в приложении

Наведите камеру смартфона на QR-код, чтобы установить приложение
Готовые подборки объектов