Элитная недвижимость в Венеции, Италия

1/2
1 950 000 €
Пентхаус в Езоло, Италия
168 м²
Этот исключительный пентхаус, расположенный на привилегированных 8-м и 9-м этажах, сочетает современную итальянскую архитектуру, высочайшее качество строительства и потрясающие панорамные виды на Адриатическое море. Будучи самой высокой резиденцией комплекса, объект предлагает уникальный уровень приватности и непревзойдённый обзор всей...
Immotrading GmbH
1/18
2 890 000 €
Вилла в Торри-дель-Бенако, Италия
240 м² 4 3
Предлагаем виллу неординарного для Италии дизайна в окружение типичного итальянского озерного пейзажа. Вилла расположена в частном сообществе «Парко Бранколино», самом эксклюзивном жилом районе в Торри-дель-Бенако, известном своими обширными участками и престижными виллами. Из окон виллы, расположенной на холме , открывается...
ITALCASA
1/9
1 250 000 €
Вилла в Венеции, Италия
300 м² 5 5
Эта красивая отдельно стоящая вилла с частным садом и просторной террасой на крыше с видом на море удобно расположена всего в нескольких минутах от моря.К услугам гостей светлые и хорошо оформленные номера, обставленные с элегантностью и изысканным вкусом. Восточный стиль прекрасно сочетается с мягкими, выразительными линиями современной мебели....
NF Group
1/18
4 000 000 €
Поместье в Вероне, Италия
2300 м² 8 3
Онлайн-показ Удалённая сделка
Очаровательный комплекс недвижимости, расположенный недалеко от Вероны, включает в себя: Венецианская вилла, датируемая первыми десятилетиями XVIII века и восхитительная в своих линиях, элегантная в своей структуре, украшенная прекрасными фресками в залах, просторные жилые квартиры, склады, сельскохозяйственные угодья, небольшая церковь и...
GH Estate
1/8
4 500 000 €
Вилла в Вероне, Италия
3582 м² 8 12
Онлайн-показ Удалённая сделка
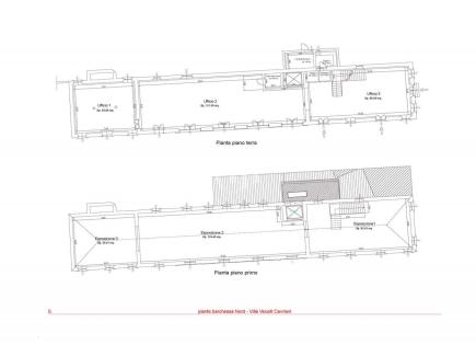
Вилла Vecelli Cavriani Ruffini - венецианская вилла, построенная в первой половине 18 века, расположена в городке Моццекане, в провинции Верона. Вилла была спроектирована веронским архитектором Адриано Кристофали. Недвижимость находится чуть более чем в километре от старинной Via Postumia и недалеко от современной дороги на Мантуа,...
GH Estate
Не смогли найти подходящий объект?

Вы получите персональную подборку объектов в Венеции по вашим требованиям.

Оставить заявку
Рекомендуем посмотреть
1/18
450 000 €
Апартаменты в Лидо ди Езоло, Италия
101 м² 4 3 1
Онлайн-показ Удалённая сделка
Эксклюзивные апартаменты с панорамными террасами в Лидо-ди-Йезоло Просыпайтесь под легкий морской бриз и наслаждайтесь утренним кофе, любуясь безграничной лазурной гладью Адриатики. Эти просторные апартаменты 101 м² расположены в центре Лидо-ди-Йезоло и обладают прямым выходом на пляж, сочетая элегантность, комфорт и неповторимый вид....
GH Estate
1/18
520 000 €
Пентхаус в Каваллино-Трепорти, Италия
94 м² 3 2 2
Онлайн-показ Удалённая сделка
Пентхаус с видом на море и просторным солярием — Каваллино-Трепорти В одном из самых престижных районов Каваллино-Трепорти предлагается новый пентхаус, недавно завершённый и расположенный на втором и последнем этаже элегантного жилого комплекса. Великолепный панорамный вид и стильное пространство Пентхаус выделяется захватывающим...
GH Estate
1/18
315 000 €
Вилла в Венеции, Италия
87 м² 3 2 1
Онлайн-показ Удалённая сделка
Таунхаус с видом на живописную площадь Бальдассаре Галуппи — уют и элегантность в сердце Бурано В самом центре Бурано, прямо напротив атмосферной площади Piazza Baldassarre Galuppi - Burano, предлагается просторный таунхаус, расположенный на трёх этажах. Этот дом объединяет уникальное расположение, функциональность и туристический...
GH Estate
1/18
398 000 €
Вилла в Венеции, Италия
158 м² 4 3 2
Онлайн-показ Удалённая сделка
Элегантный таунхаус с частным двором в сердце Бурано Всего в 3 минутах ходьбы от очаровательной площади Piazza Baldassarre Galuppi предлагается просторный таунхаус с частным внутренним двором, расположенный на одном из самых живописных островов Венецианской лагуны. Функциональная планировка: • Первый этаж — светлая гостиная с...
GH Estate
1/9
355 000 €
Апартаменты в Лидо ди Езоло, Италия
75 м² 3 2 2
Онлайн-показ Удалённая сделка
Современные апартаменты в резиденции с бассейном — комфорт и элегантность в сердце Лидо-ди-Йезоло. В престижном Caribe Residence, всего в нескольких минутах ходьбы от пляжа, предлагается стильный трехкомнатный апартамент на первом этаже с частным садом. Это идеальное пространство для тех, кто ценит качество жизни, расслабленную атмосферу...
GH Estate
1/18
650 000 €
Вилла в Венеции, Италия
227000 м² 4 3 2
Онлайн-показ Удалённая сделка
Элегантная резиденция с частным садом в сердце Бурано. В самом живописном районе Бурано, всего в нескольких шагах от его знаменитых разноцветных улочек, представлена просторная и утончённая резиденция площадью 230 м², распределённая на три уровня. Главной особенностью является эксклюзивный частный сад — редкость для острова,...
GH Estate
1/18
790 000 €
Пентхаус в Венеции, Италия
90 м² 3 2 2
Онлайн-показ Удалённая сделка
Роскошный пентхаус на площади Сан-Марко — воплощение элегантности и венецианской магии. В самом сердце Венеции, всего в нескольких шагах от легендарной площади Сан-Марко, расположен изысканный пентхаус, объединяющий историческое наследие и современные удобства. Этот тщательно отреставрированный архитектурный шедевр класса A3 предлагает...
GH Estate
1/16
299 000 €
Апартаменты в Лидо ди Езоло, Италия
140 м² 4 3 2
Онлайн-показ Удалённая сделка
Эксклюзивная квартира рядом с туристическим портом Лидо-ди-Йезоло. В одном из самых престижных районов, всего в нескольких шагах от порта, предлагается просторная и редкая квартира, расположенная в небольшом жилом комплексе, состоящем всего из трех единиц. Основные характеристики: · Просторная площадь на одном уровне, с удобной...
GH Estate
1/15
320 000 €
Апартаменты в Лидо ди Езоло, Италия
100 м² 3 2 2
Онлайн-показ Удалённая сделка
Современные апартаменты с бассейном в центре Лидо-ди-Йезоло. В престижном районе рядом с площадью Драго расположился новый жилой комплекс «Residence KaLUNA», состоящий всего из 8 эксклюзивных апартаментов. Здесь гармонично сочетаются комфорт, уединение и удобная близость к пляжу и городской инфраструктуре. Здание построено по...
GH Estate
1/14
550 000 €
Вилла в Венеции, Италия
600 м² 7 6 2
Онлайн-показ Удалённая сделка
Просторный загородный дом, окруженный зеленью, всего в десяти минутах от морского побережья Езоло. В живописной местности Кортеллаццо предлагается к продаже уютный отдельно стоящий дом, который станет идеальным выбором для ценителей природы и уединения, сохраняя при этом удобный доступ к городской инфраструктуре и прекрасным пляжам Адриатики....
GH Estate
1/18
390 000 €
Апартаменты в Лидо ди Езоло, Италия
70 м² 3 2 1
Онлайн-показ Удалённая сделка
Квартира с видом на море в самом центре Лидо-ди-Йезоло, на площади Piazza Mazzini , всего в нескольких шагах от пляжа. Представьте, как солнечные лучи наполняют просторную гостиную открытого типа, создавая теплую и уютную атмосферу для отдыха в кругу семьи или друзей. Панорамное окно дарит ощущение простора, а частная терраса позволяет...
GH Estate
1/18
480 000 €
Вилла в Лидо ди Езоло, Италия
158 м² 4 3 2
Онлайн-показ Удалённая сделка
Расположенная в тихом жилом комплексе всего из четырех резиденций, эта вилла предлагает просторное и комфортное жилье, идеально подходящее для семей. Стиль и комфорт: Светлая и просторная гостиная, наполненная естественным светом. Кухня, отдельная от зоны отдыха, выходит на частный мощеный двор – отличное место для встреч с...
GH Estate
1/9
385 000 €
Апартаменты в Лидо ди Езоло, Италия
111 м² 4 3 2
Онлайн-показ Удалённая сделка
Эксклюзивные апартаменты в новом жилом комплексе в Лидо-ди-Езоло, площадь Piazza Aurora – 2 или 3 спальни Предлагаем к продаже новые апартаменты в районе Caribe Bay. Современный жилой комплекс, состоящий из четырех зданий (Antigua, Cuba, Dominica, Honduras), предлагает варианты с двумя или тремя спальнями и двумя ванными комнатами....
GH Estate
1/18
400 000 €
Апартаменты в Лидо ди Езоло, Италия
70 м² 3 2 1
Онлайн-показ Удалённая сделка
Эксклюзивные апартаменты на первой линии моря – резиденция Playa Grande, Лидо-ди-Езоло, площадь Милано Предлагаем к продаже престижные апартаменты в знаменитой резиденции Playa Grande, расположенной в сердце площади Милано, Лидо-ди-Езоло. Уникальное расположение на первой линии, исключительный комфорт и современные удобства делают этот...
GH Estate
1/5
340 000 €
Апартаменты в Езоло, Италия
70 м² 3 2 2
Онлайн-показ Удалённая сделка
Элегантная квартира в престижном районе Лидо-ди-Езоло Новый жилой комплекс с современным дизайном и удобным расположением, сдача в апреле 2025 года. В нескольких шагах от площади Piazza Drago, в центре Лидо-ди-Езоло, представлена элегантная квартира, созданная для комфортной жизни и отдыха. Основные характеристики: · Просторная...
GH Estate
1/17
Цена по запросу
Апартаменты в Вероне, Италия
600 м² 10 4 5
В историческом центре города, в районе собор Дуомо, мы предлагаем к продаже элитарные апартаменты в престижном здании конца пятнадцатого века. Здание было полностью преобразовано в XVIII веке и недавно отреставрировано, сохранив всю свою эксклюзивность с комнатами, оформленными величайшими художниками новой живописной школы того времени....
GH Estate
Вблизи у моря, вдали от суеты!
1/12
49 000 €
Квартира в Скалее, Италия
65 м² 2 1 1
Удалённая сделка
Скалея, регион Калабрия (Италия) - один из самых популярных курортов на Тирренском побережье. Ну, кто из нас не мечтал о том, что бы иметь свою собственную квартиру, особенно когда уже есть семья. А недвижимость на берегу моря, со свежим морским воздухом и теплым ветерком это просто мечта! Мечта, которая может стать реальностью. Легкий бриз,...
Купите дачу в Италии с садиком
1/10
27 000 €
Квартира в Скалее, Италия
36 м² 2 1 1
Онлайн-показ Удалённая сделка
К счастью, сегодня недвижимость в Скалее на берегу прекрасного Тирренского моря вполне доступна многим семьям. Приезжать к себе домой в Италию-это клево. Не в чужие гостиничные номера на 2 недели, а к себе домой на 6 месяцев в году. Продается небольшая, уютная квартира на первом этаже пятиэтажного дома. Via Piano Lettieri. Лесопарковая зона с...
1/18
130 000 €
Дом в Ортоне, Италия
119 м² 4 2 2
Онлайн-показ Удалённая сделка
Отдельный дом у моря с участком в жилом районе — редкое предложение на одном из самых живописных побережий Абруццо. Продаётся дом в Абруццо у моря на одном из самых живописных побережий региона — Costa dei Trabocchi. Отдельный дом у моря в Абруццо с участком почти 1700 м², расположен всего в 650 метрах от побережья, в жилом...
AB PROPERTY
1/18
650 000 €
Дом в Монтесильвано, Италия
300 м² 6 3 4
Онлайн-показ Удалённая сделка
Вилла с панорамными видами находится в престижной и зелёной части Монтесильвано Колле, всего в 5 минутах езды от моря. Тихий жилой район с удобным расположением и близостью к городской инфраструктуре. Объект представляет собой ½ часть виллы на две семьи Недвижимость расположена на трёх уровнях, соединённых внутренней лестницей и...
AB PROPERTY
1/18
98 000 €
Дом в Пескаре, Италия
116 м² 4 3 2
Онлайн-показ Удалённая сделка
Дом для тех, кто ищет тишину, природу и уют. Отреставрирован, с огороженным участком, среди зелёных холмов национального парка, в получасе от моря и аэропорта. Если вы ищете место, где каждый день начинается с чистого воздуха, тишины и зелёных пейзажей — этот дом в Vestea (коммуна Чивителла Казанова) может стать именно тем самым местом....
AB PROPERTY
1/18
73 000 €
Таунхаус в Фариндоле, Италия
176 м² 6 4 4
Удалённая сделка Объект под сдачу
Традиционный каменный дом в горной деревушке — две независимые квартиры и уютное полуподвальное помещение, полностью пригодное для проживания. Жизнь среди природы, в окружении гор и чистейшего воздуха. В самом центре живописной деревушки Фариндола, на территории Национального парка Гран-Сассо и Монти-делла-Лага, находится с любовью...
AB PROPERTY
1/15
550 000 €
Дом в Монтепульчано, Италия
326 м² 11 5 3
Just a few steps from the historic center of Montepulciano and close to all amenities, this charming property of approximately 300 sqm is arranged over two levels, characterized by spacious and light-filled interiors. On the ground floor, a functional entrance welcomes you and opens directly onto a splendid open-plan living area; this unique and...
Great Estate
1/15
740 000 €
Дом в Монтепульчано, Италия
265 м² 22 3 2
This interesting property is located in the beautiful countryside of Montepulciano, just a short distance from all amenities. The main building consists of a stone farmhouse to be renovated on two levels of approximately 100 sqm, along with a newer section on three levels, built in 2002, for a total of 310 sqm. The newer section features, on the...
Great Estate
1/15
230 000 €
Дом в Италии
147 м² 6 2 1
In the Tuscan countryside, near the medieval village of Casole d’Elsa, we offer a charming portion of a farmhouse with views over the rolling hills. The property is arranged over 2 levels and has a surface area of approximately 113 sqm. Currently, on the ground floor there is a spacious living area, kitchen, storage room, and a bedroom with...
Great Estate
1/13
205 000 €
Дом в Монтальчино, Италия
80 м² 4 1 1
Small cottage of approximately 80 sqm in the center of Montisi, the property is presented in excellent condition and is enhanced by a private garden of about 70 sqm. The property is arranged over two levels: on the ground floor we find a bedroom, another room to be used as a second bedroom or study, and a bathroom; from the ground floor there...
Great Estate
1/14
3 700 000 €
Дом в Италии
921 м² 31 10 10
In the Florentine hills, in the locality of Poggio a Caiano, a property is offered for sale consisting of a main villa and two guesthouses, set in a panoramic position. The main villa has a surface area of approximately 700 sqm and is arranged over four split levels. The ground floor includes the entrance, kitchen, two bedrooms, two bathrooms,...
Great Estate
1/15
295 000 €
Вилла в Кортоне, Италия
404 м² 10 2 1
Эта многосемейная вилла расположена на равнине долины Валь-ди-Кьяна, в коммуне Кортона, провинция Ареццо, регион Тоскана, и состоит из трёх уровней. Здание, построенное в 1990 году и частично отреставрированное, включает одиннадцать помещений, функционально распределённых для обеспечения просторных и независимых жилых зон. Вход автономный, с...
Great Estate
1/14
400 000 €
Вилла в Италии
58 м² 4 1 1
In the quaint village of Celle sul Rigo, within the municipality of San Casciano dei Bagni, we offer for sale a delightful detached villa of approximately 50 sqm, immersed in the tranquility of the Tuscan countryside. The residence consists of a kitchen, a welcoming living room with fireplace, one bedroom, and a bathroom. Enhancing the...
Great Estate
1/18
269 000 €
Квартира в Тремеццине, Италия
80 м² 3 2 2
Онлайн-показ Удалённая сделка
ef.981 — Тремеццина, озеро Комо В современном жилом комплексе 2011 года предлагается двухуровневая квартира площадью около 80 м² с бассейном и солярием в общих зонах, всего в 8–10 минутах пешком от озера. Квартира имеет удобную и функциональную планировку и подходит как для собственного отдыха на озере Комо, так и для...
Il Globo Real Estate Lake Como
Готовые подборки объектов

Ищите объекты в приложении

Наведите камеру смартфона на QR-код, чтобы установить приложение